Traditional four-bed with double garage near top local schools and commuter links.
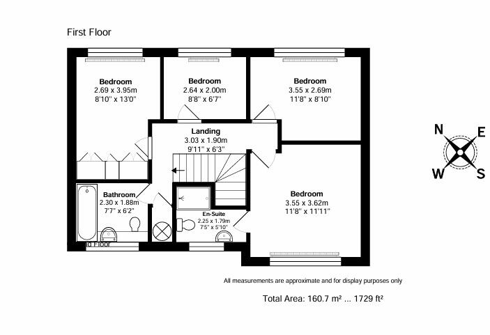
- Four bedrooms including en-suite principal bedroom
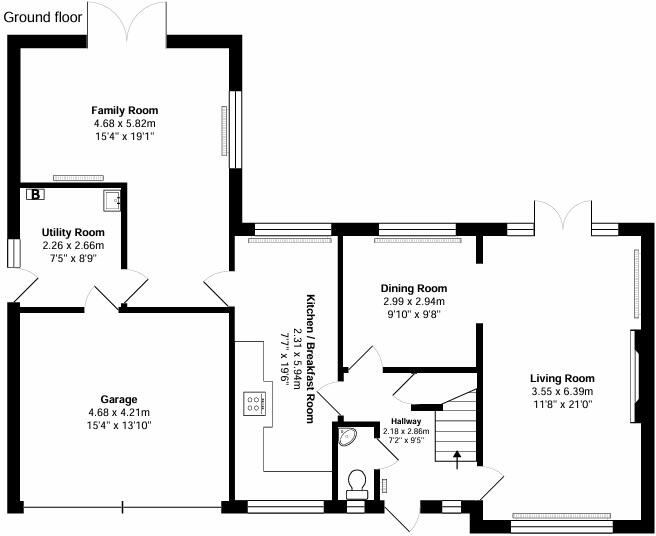
- Large 21ft living room with brick-style fireplace
- 19ft kitchen/breakfast room with built-in appliances
- Double garage with electric doors and driveway parking
- Enclosed rear garden with patios and mature planting
- Constructed 1967–75; may need future fabric or service updates
- Medium flood risk; check insurance and flood advice
- Council tax band F; running costs likely above average
This spacious four-bedroom detached house on Cadet Way offers a traditional layout suited to growing families. The 21ft living room, separate family room and a 19ft kitchen/breakfast space provide flexible reception areas for everyday life and entertaining. Practical features include a double garage with electric doors, driveway parking for up to four cars and an enclosed rear garden with patios and mature planting.
The accommodation has been well cared for by long-term owners and benefits from recent insulation upgrades, timber or wood-effect flooring and double glazing (install date unknown). The property is on a generous plot in an affluent, family-oriented area with excellent commuter connections to Fleet and London Waterloo, strong local schools and a full range of shops and leisure facilities nearby.
Notable points to consider: the house was constructed in the late 1960s–1970s, so some fabric or services may need future updating; cavity walls are recorded as ‘as built’ with limited original insulation, and the property sits in a medium flood-risk zone. Council tax is band F and the EPC rating is C, reflecting moderate energy performance.
Overall, this is a practical, well-sized family home in a desirable Church Crookham location, offering immediate liveability and scope to personalise and modernise over time.
4 bedroom detached house for sale in Browning Road, Church Crookham, GU52 — £725,000 • 4 bed • 2 bath • 1985 ft²
5 bedroom detached house for sale in Polkerris Way, Church Crookham, GU52 — £700,000 • 5 bed • 3 bath • 1844 ft²
4 bedroom detached house for sale in Sian Close, Church Crookham, GU52 — £630,000 • 4 bed • 3 bath • 1184 ft²
4 bedroom detached house for sale in Nugent Close, Church Crookham, GU52 — £635,000 • 4 bed • 2 bath • 1249 ft²
4 bedroom detached house for sale in Watery Lane, Church Crookham, Fleet, GU52 — £700,000 • 4 bed • 2 bath • 1434 ft²
5 bedroom detached house for sale in Crookham Road, Church Crookham, Fleet, Hampshire, GU51 — £900,000 • 5 bed • 3 bath • 2172 ft²


























































































