NR4 6QQ - 3 bed eaton rise detached home in Norwich South, NR4 6QQ

View on Property Piper

3 bedroom detached house for sale in Welsford Road, Eaton Rise, NR4

Summary - 54 Welsford Road,NORWICH,NR4 6QQ NR4 6QQ

3 bed 2 bath Detached

Spacious garden, garage and large lounge-diner for family life.
Detached 3-bedroom home with potential ground floor fourth bedroom
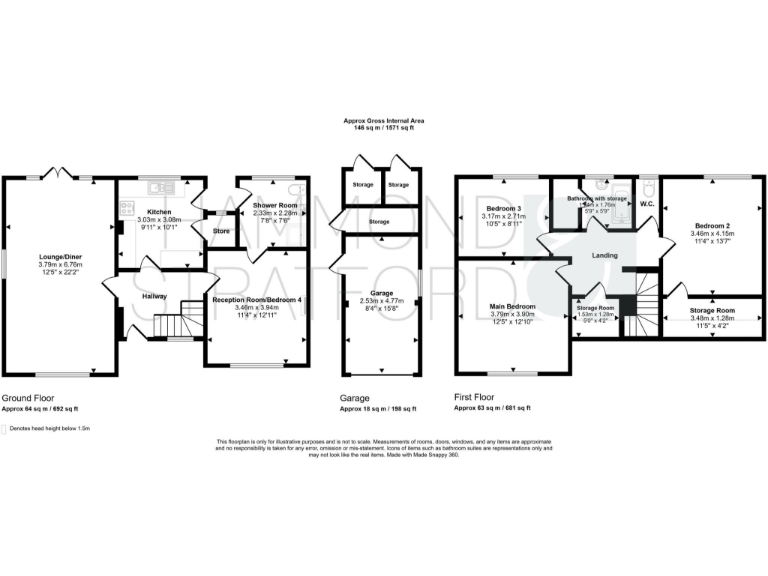
Set on a quiet, tree-lined street in sought-after Eaton Rise, this detached mid‑century house offers a rare combination of size, garden and proximity to Norwich city centre. The triple-aspect 22'2 lounge/diner provides a light, flexible living and entertaining space while the kitchen overlooks a mature, well-established rear garden ideal for families and keen gardeners.

Upstairs there are three generous bedrooms and a family bathroom; the ground floor includes a separate study or potential fourth bedroom plus a shower room with external access. Gas central heating, double glazing and a powered garage are practical benefits for everyday living.

The property is chain-free and presented as a renovation project, giving buyers the scope to modernise and personalise throughout. The plot (approx. 50' x 30') and garage add useful space and future value, but the house will require updating to reach its full potential. Council Tax is band E (above average).

Property Details

Image Descriptions

Floorplan Description

Rooms

Textual Property Features

Target Audience

AI Tags

Detected Visual Features

Nearby Schools

Nearest Bars And Restaurants

,,,,}

Nearest General Shops

,,}

Nearest Grocery shops

,,}

Nearest Supermarkets

,,}

Nearest Religious buildings

,,}

Nearest Medical buildings

,,,}

Nearest Leisure Facilities

,,,,}

Nearest Tourist attractions

,,}

Nearest Train stations

,,,,}

Nearest Bus stations and stops

,,,,}

Nearest Hotels

,,}

Tags

Local Market Stats

Similar Properties

Meta

High Res Images

Compatible Images

Low res Images

Thumbnails

Raw Images

High Res Floorplan Images

Compatible Floorplan Images

Low res Floorplan Images

FloorplanImages Thumbnail

Raw Floorplan Images