PE14 8DS - 4 bed contemporary detached home in Contour Close, PE14 8DS

View on Property Piper

4 bedroom detached house for sale in Contour Close, Emneth, Wisbech, PE14

Summary - Contour Close, Emneth, Wisbech, PE14 PE14 8DS

4 bed 3 bath Detached

High-spec living with garden and garage ideal for growing families.
Newly built four-bedroom detached house with two en-suites
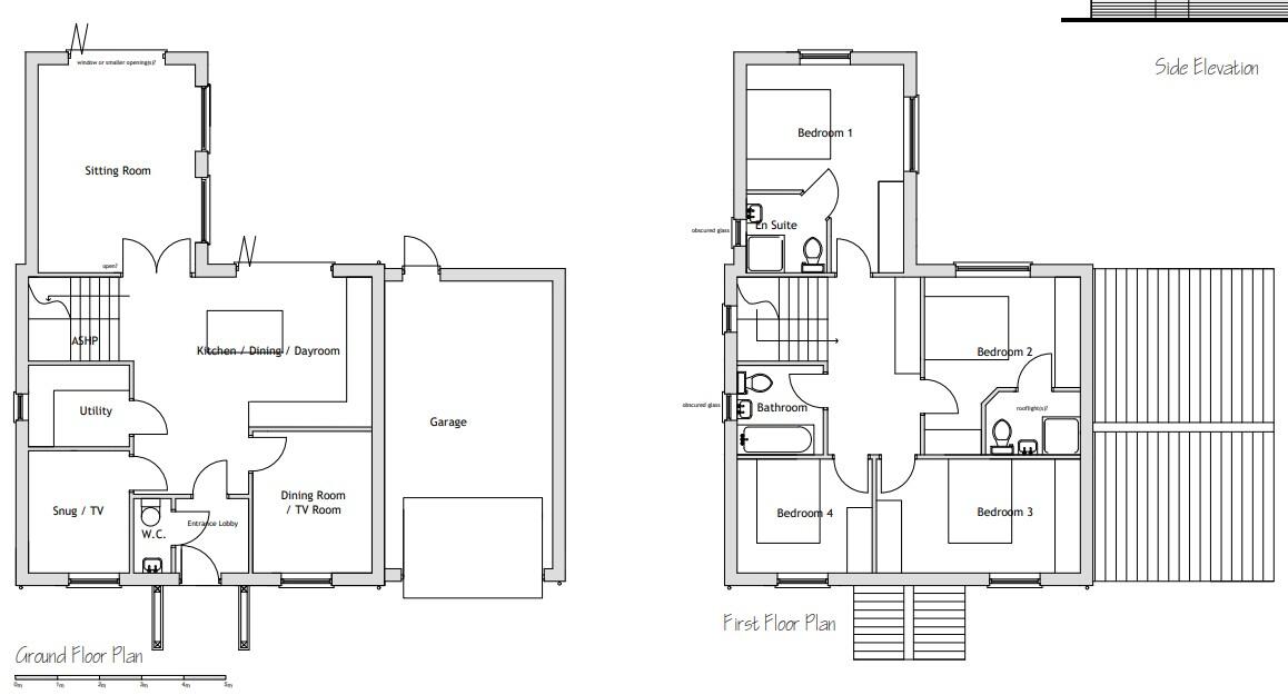
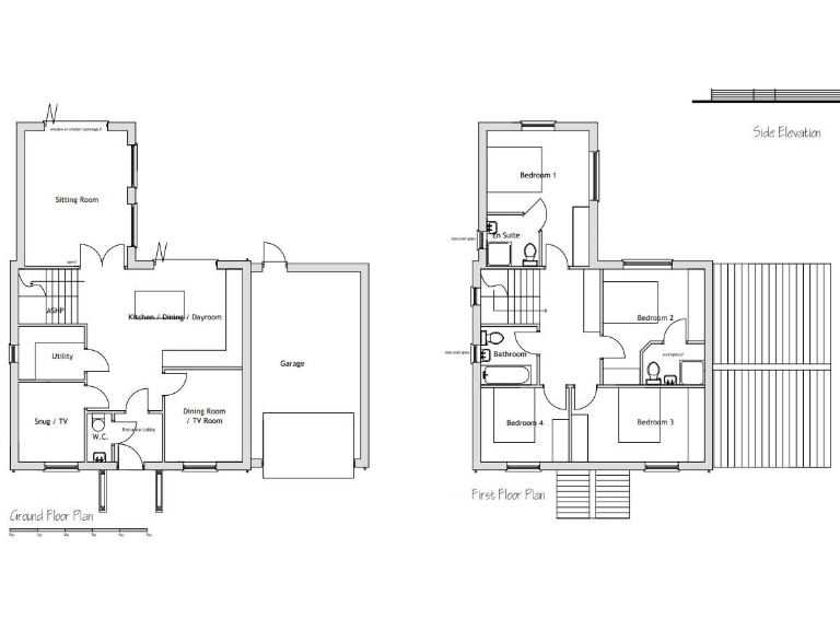
A newly built four-bedroom detached house offering contemporary family living in the well-served village of Emneth. The ground floor centres on an open-plan kitchen/diner with bi-fold doors to the rear garden, a separate living room and a study — useful for home working. High-quality finishes include quartz worktops, integrated Bosch appliances, underfloor air source central heating, and an electric garage door.

Upstairs there are four bedrooms, two with en-suites, plus a family bathroom. Outside, the plot includes a generous gravel driveway, patio, fenced garden, external lighting and tap. Broadband speeds are fast and mobile signal is excellent, while the property sits in a low-crime area close to a selection of primary and secondary schools.

Buyers should note this is a development plot; internal photos and floorplans are from a similar plot and exact specifications should be confirmed before purchase. The location is classed as a remoter rural community with some area deprivation, so local facilities are more limited than in urban centres. Council tax banding is currently unknown.

Property Details

Image Descriptions

Floorplan Description

Rooms

Textual Property Features

Target Audience

AI Tags

Detected Visual Features

Nearby Schools

Nearest Bars And Restaurants

,,,,}

Nearest General Shops

,,}

Nearest Grocery shops

,,}

Nearest Supermarkets

,,}

Nearest Religious buildings

,,}

Nearest Medical buildings

,,,}

Nearest Leisure Facilities

,,,,}

Nearest Tourist attractions

,,}

Nearest Train stations

,,,,}

Nearest Bus stations and stops

,,,,}

Nearest Hotels

,,}

Tags

Local Market Stats

Similar Properties

Meta

High Res Images

Compatible Images

Low res Images

Thumbnails

Raw Images

High Res Floorplan Images

Compatible Floorplan Images

Low res Floorplan Images

FloorplanImages Thumbnail

Raw Floorplan Images