Central family home with private parking and low-maintenance garden.
Chain-free modern freehold house over three floors
Private gated off-street parking for one vehicle
Private patio garden — compact but private outdoor space
Two double bedrooms with en-suites; flexible lower-ground room
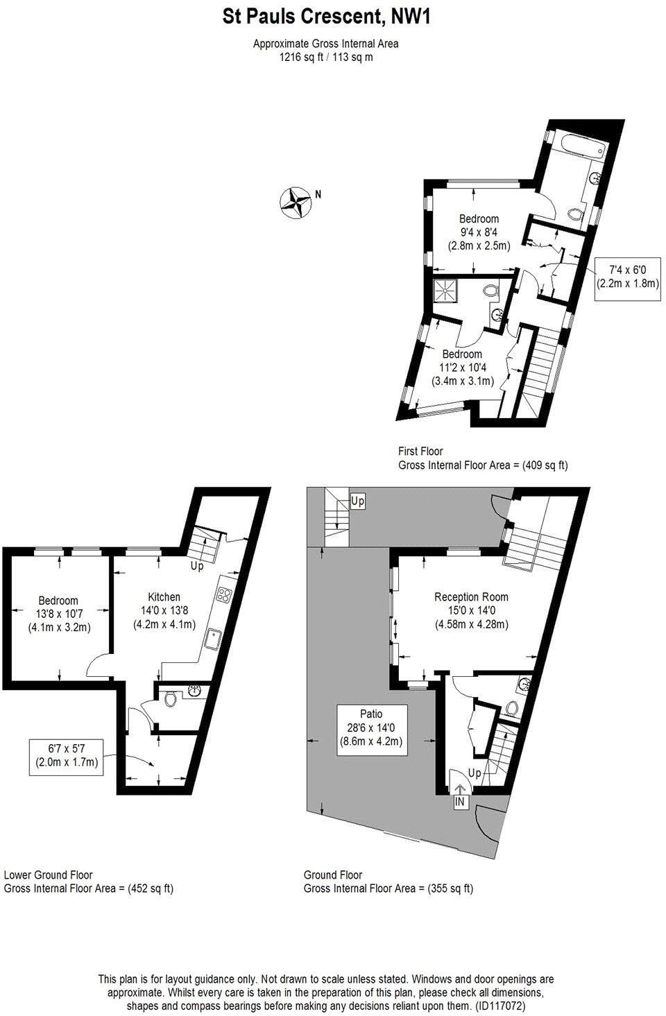
Approximately 1,216 sq ft; underfloor heating and double glazing
Excellent mobile signal and fast broadband for home working
Located near King’s Cross, Camden Town and good local schools
Area flagged: very deprived with above-average local crime rates
Set over three floors, this contemporary freehold house offers practical family living in a quiet corner of St Pauls Crescent. The ground-floor living room opens via patio doors to a private patio garden; the lower-ground level houses a large kitchen/diner plus an extra room that could serve as a fourth bedroom or reception. Two double bedrooms on the first floor both have en-suite bathrooms, giving privacy for adults and older children.
Practical features include gated off-street parking, double glazing, boiler-fed central heating with underfloor heating, and roughly 1,216 sq ft of internal space. Chain-free sale and a modern 2003–2006 construction mean a straightforward purchase and contemporary finishes throughout. Good broadband and excellent mobile signal suit home working or streaming.
Location is a major draw: close to Camden Town, King’s Cross and Kentish Town with easy transport links and amenities. Several well-regarded state schools lie nearby, including Camden School for Girls, and local leisure, cafés and shops are within easy reach.
Buyers should note some material negatives: the property sits in an area assessed as very deprived with above-average local crime rates; purchasers should review safety and security measures. The plot and garden are small, and council tax is described as expensive. Overall, the house is a modern, well-laid-out family home in a highly connected central location, best for buyers prioritising location and low-maintenance contemporary living.
3 bedroom end of terrace house for sale in St. Pauls Crescent,
Camden, NW1 — £1,235,000 • 3 bed • 1 bath • 1288 ft²
2 bedroom flat for sale in St. Pauls Crescent,
Camden, NW1 — £800,000 • 2 bed • 2 bath • 1100 ft²
4 bedroom terraced house for sale in St. Pauls Mews, Camden, NW1 — £1,500,000 • 4 bed • 3 bath • 1512 ft²
3 bedroom house for sale in Gloucester Crescent, Regent's Park, London, NW1 — £3,250,000 • 3 bed • 2 bath • 1318 ft²
4 bedroom terraced house for sale in St. Pauls Mews, Camden, NW1 — £1,500,000 • 4 bed • 3 bath • 1544 ft²
4 bedroom terraced house for sale in Royal College Street, Camden, NW1 — £1,250,000 • 4 bed • 2 bath • 1652 ft²










































