Large open-plan home minutes from King’s Cross and transport hubs.
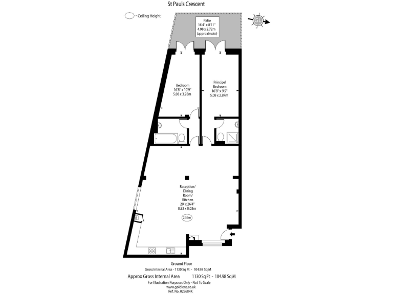
- Over 1,100 sq ft: unusually large lateral ground-floor apartment
- Two double bedrooms and two bathrooms, flexible open-plan layout
- South-west facing private patio; own street entrance
- Secure gated development with shared courtyard parking
- Underfloor heating and mains gas boiler; modern double glazing
- Very long lease (approx. 980 years) and chain-free sale
- Local area: above-average crime and described as very deprived
- Council tax above average; parking is shared not private
This exceptionally large ground-floor apartment offers over 1,100 sq ft of flexible living space ideal for a buyer wanting room to grow. The open-plan reception/kitchen is bright and generous, with wide-plank flooring and high ceilings that enhance the sense of space. Two double bedrooms and two bathrooms make the layout highly practical for couples or sharers.
Practical benefits include a private south-west facing rear patio, underfloor heating served by a mains gas boiler, gated development with its own street entrance, and a long lease (approx. 980 years). The property is chain-free and positioned a short walk from King’s Cross and Granary Square, giving exceptional transport and leisure links.
Buyers should note the setting: the local area records above-average crime and is described as very deprived, which may affect perceived safety and long-term neighbourhood feel. Council tax is above average and parking is shared in the front courtyard rather than allocated private parking.
Overall this is a spacious, modern ex-design studio apartment that suits first-time buyers or professionals who prioritise size, transport connections and contemporary living. It presents good rental and resale appeal but buyers should weigh the local-area statistics and ongoing running costs before committing.
2 bedroom flat for sale in St. Pauls Crescent, Camden, NW1 — £750,000 • 2 bed • 2 bath • 1100 ft²
3 bedroom house for sale in St Pauls Crescent,
Camden, NW1 — £1,000,000 • 3 bed • 3 bath • 1216 ft²
2 bedroom flat for sale in Northpoint Square,
Tufnell Park, NW1 — £700,000 • 2 bed • 2 bath • 893 ft²
3 bedroom end of terrace house for sale in St. Pauls Crescent,
Camden, NW1 — £1,235,000 • 3 bed • 1 bath • 1288 ft²
2 bedroom apartment for sale in Hampshire Street, Kentish Town, NW5 — £745,000 • 2 bed • 2 bath • 1668 ft²
2 bedroom flat for sale in Kingston House,
Camden Street, NW1 — £665,000 • 2 bed • 1 bath • 992 ft²






























































