**Standout Features:**
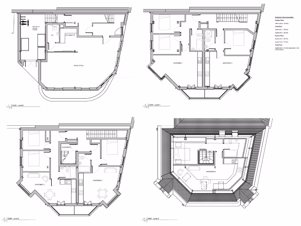
- Planning consent granted for a mixed-use development (one office, five apartments)
- Steel frame structure already erected
- Total area: 3,861 sq. ft.
- Prime location near Stockport Market Place and Merseyway shopping center
- Excellent connectivity to public transport (0.5 miles to Stockport station)
- Freehold tenure, priced attractively at £325,000
- Potential for customization and growth
**Concerns:**
- Currently a partially demolished site requiring further investment for completion
- Limited view and greenery due to urban setting
- Some existing paperwork necessitates due diligence
Summary:
Discover a promising development opportunity in the heart of Stockport at Middle Hillgate. This substantial commercial property comes with planning permission (Ref: DC/082551) for a mixed-use project that includes one office and five self-contained apartments across five floors. With a total area of 3,861 sq. ft. and a structural steel frame already constructed, this site is poised for transformation into a vibrant residential and commercial space.
Located only steps away from Stockport's bustling Market Place and Merseyway shopping district, this property offers exceptional potential for both investment and end-use. It boasts a strategic position near transport links, enhancing its appeal to future tenants. The flexible layout allows for creative utilization of space, making it perfect for investors looking to capitalize on the growing demand for urban living and working environments.
Although currently a fixer-upper needing further attention, the property represents an excellent investment opportunity for those ready to create a contemporary urban hub. Seize this chance to be part of Stockport's development landscape!
Commercial development for sale in 1 Wellington Road South, Stockport, SK4 1AA, SK4 — £700,000 • 1 bed • 1 bath • 9165 ft²
Commercial development for sale in 40 Newbridge Lane, Newbridge Lane, Stockport, Stockport, Cheshire, SK1 — £550,000 • 1 bed • 1 bath • 5227 ft²
Plot for sale in Bamford Street, Stockport, SK1 — £450,000 • 1 bed • 1 bath
Commercial development for sale in 45 & 47 Mersey Square & 39 Daw Bank, Stockport, SK1 1NU, SK1 — £295,000 • 1 bed • 1 bath • 2800 ft²
Commercial development for sale in 40 Newbridge Lane, Stockport, Greater Manchester SK1 2NA, SK1 — £400,000 • 1 bed • 1 bath • 17842 ft²
Residential development for sale in The Ropeworks, Stanbank Street, Stockport, Cheshire, SK4 1PX, SK4 — £700,000 • 1 bed • 1 bath






























































