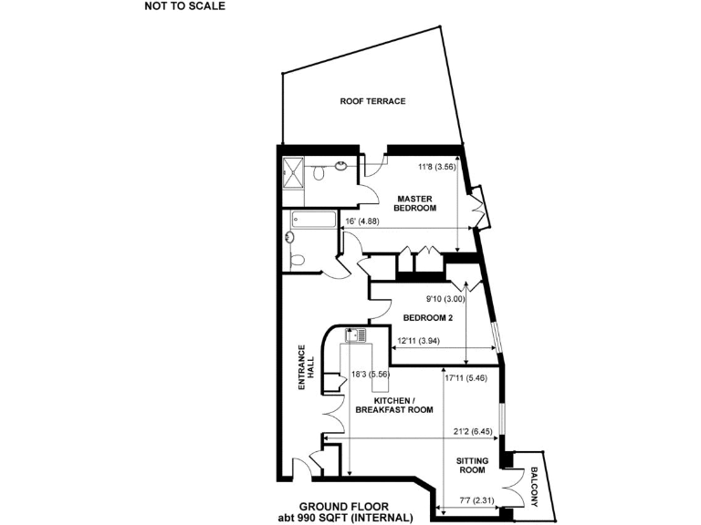
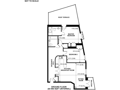
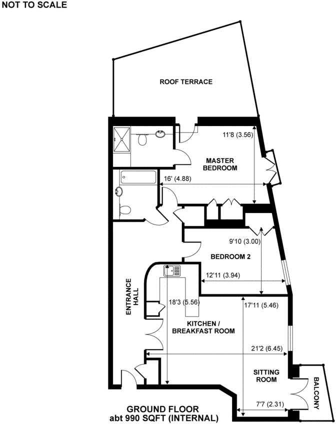
**Standout Features:**
- Expansive private roof terrace with panoramic views
- Spacious open-plan living area (21x18 ft) with integrated modern kitchen
- Two double bedrooms, including an en-suite master
- Access to premium resident amenities: pool, sauna, gym, and concierge service
- Excellent energy efficiency with EPC rating B
- Prime central location in sought-after Trinity Gate development
**Summary:**
Discover urban living at its finest in this beautifully presented two-bedroom, two-bathroom apartment located in the desirable Trinity Gate development in Guildford. Spanning approximately 990 square feet, this contemporary home boasts a generous open-plan kitchen and living area, perfect for modern lifestyles. The highlight is the substantial private roof terrace, offering breathtaking panoramic views ideal for relaxation or entertaining under the sky.
Enjoy premium resident amenities, including a swimming pool, sauna, steam room, and gym, alongside secure underground parking for your convenience. With high-end finishes, from integrated kitchen appliances to stylish bathrooms, this apartment combines comfort and functionality. While set in a bustling town center, enjoy a vibrant community atmosphere with easy access to shops, restaurants, and transport links, including a short walk to London Road train station. Don't miss this exclusive opportunity to own a modern sanctuary in one of Guildford's most coveted locations.
2 bedroom apartment for sale in The Bellerby Apartments, Leapale Lane, Guildford, Surrey, GU1., GU1 — £550,000 • 2 bed • 2 bath • 2205 ft²
3 bedroom flat for sale in Trinity Gate, Epsom Road, Guildford, Surrey, GU1 — £575,000 • 3 bed • 2 bath • 488 ft²
2 bedroom apartment for sale in Martyr Road, Guildford, Surrey, GU1 — £330,000 • 2 bed • 2 bath • 660 ft²
2 bedroom apartment for sale in Trinity Gate, Epsom Road, Guildford, Surrey, GU1 — £500,000 • 2 bed • 2 bath • 980 ft²
2 bedroom apartment for sale in Alexandra Terrace, Guildford, Surrey, GU1 — £525,000 • 2 bed • 2 bath • 1126 ft²
2 bedroom flat for sale in Alexandra Terrace, Guildford, GU1 — £550,000 • 2 bed • 2 bath • 956 ft²






























































