Spacious character home with large garden in a sought-after family location.
Period Edwardian detached home spanning three floors and 1,572 sq ft
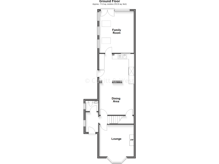
Generous reception rooms, bay windows and feature fireplace
Large kitchen/breakfast room and separate family room with garden access
Decent rear garden and private driveway for off-street parking
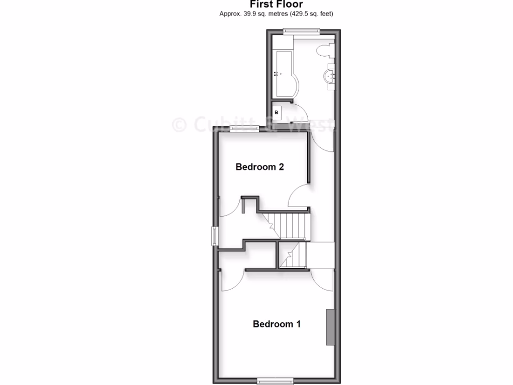
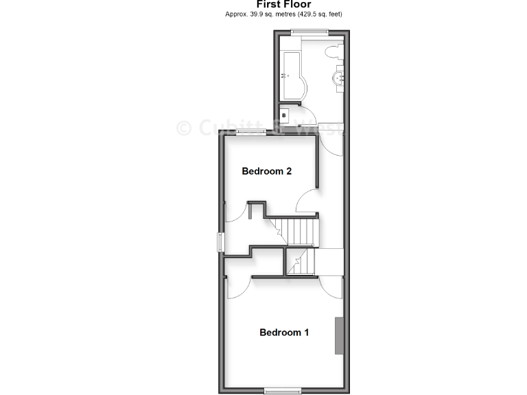
Three double bedrooms but only one bathroom on site
Solid brick walls (likely uninsulated); may need energy upgrades
Double glazing present; installation date unknown
Freehold, no flood risk, situated in strong school catchment
This striking three-bedroom detached Edwardian home spans three floors and 1,572 sq ft, combining generous proportions with period detail. High ceilings, bay windows with bespoke shutters and a feature fireplace give the principal rooms strong character, while a long kitchen/breakfast space and separate family room provide flexible living for families and entertaining.
Externally the property sits on a decent plot with an expansive, well-maintained rear garden and private driveway for off-street parking. Located on a popular family road in Redhill, it benefits from good local amenities, fast broadband and access to several well-regarded schools, including an outstanding secondary nearby.
Practical considerations: the house was constructed circa 1900–1929 with solid brick walls (assumed uninsulated) and double glazing of unknown install date. There is one bathroom serving three good-sized double bedrooms, and older properties may need energy improvements or updating to meet modern standards. The tenure is freehold and there is no flood risk.
Overall this is a roomy, characterful family home in an affluent area, offering immediate comfort and scope to modernise sensibly for improved energy performance and convenience.
3 bedroom detached house for sale in Cavendish Road, Redhill, Surrey, RH1 — £600,000 • 3 bed • 2 bath
4 bedroom detached house for sale in Rural Way, Redhill, RH1 — £700,000 • 4 bed • 2 bath • 1706 ft²
5 bedroom detached house for sale in Croydon Road, Reigate, RH2 — £900,000 • 5 bed • 2 bath • 1245 ft²
4 bedroom detached house for sale in Hurstleigh Drive, Redhill, Surrey, RH1 — £800,000 • 4 bed • 2 bath • 1313 ft²
3 bedroom semi-detached house for sale in Nutfield Road, Redhill, RH1 — £645,000 • 3 bed • 2 bath • 1135 ft²
5 bedroom detached house for sale in Carlton Green, Redhill, RH1 — £900,000 • 5 bed • 1 bath • 1547 ft²






























































































































