Large five-bedroom detached coastal home with terraces and southerly garden.
Panoramic, uninterrupted sea views to Mewstone and River Yealm
Set on an elevated plot at Wembury Point, this split-level detached house delivers uninterrupted panoramic sea views from the lounge, balcony and southerly gardens. The open-plan living area with full-height glazed bay and sliding doors is designed to make the most of the outlook, while terraces and level lawns provide immediate outdoor entertaining space.
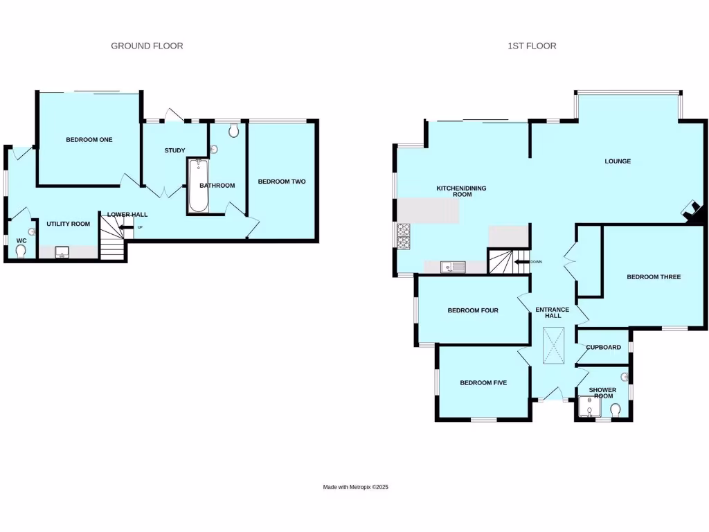
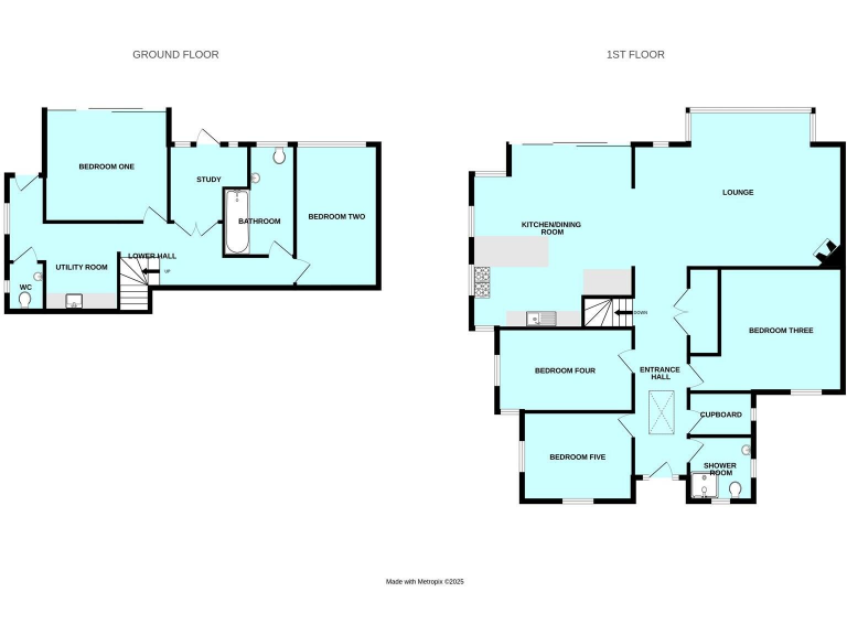
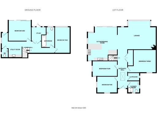
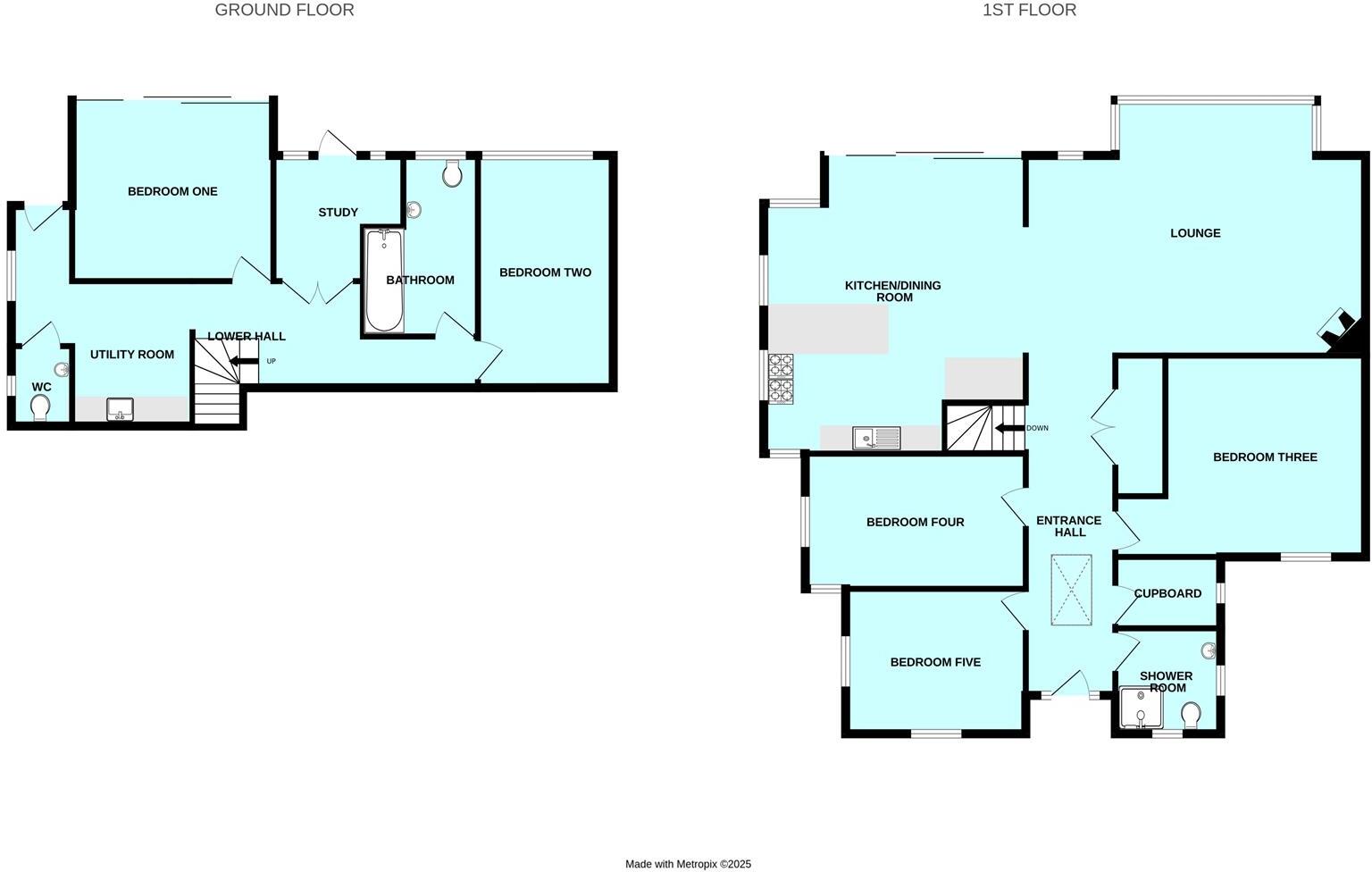
Internally the property offers generous family accommodation across multiple levels: five double bedrooms, a study, two bathrooms, utility and downstairs cloakroom. Practical features include solar panels, an EV charger, under-floor heating in parts of the home and ample glazing that floods rooms with light. Driveway parking and direct garden access add everyday convenience.
Buyers should note the home’s mixed services and fabric: the main heating is oil-fired with radiators (supplemented by electric heating/underfloor), the external walls are cavity with assumed no added insulation and the double glazing was installed before 2002. Broadband is reported as slow. These points affect running costs and present straightforward improvement opportunities for energy upgrades and modernization.
This property is well suited to a family or buyers seeking a coastal residence with strong holiday-let or second-home appeal. The plot, layout and commanding views create clear potential to increase comfort and value through targeted refurbishment and insulation works. Offered with no onward chain for a quicker move.
4 bedroom detached house for sale in Wembury, Plymouth, PL9 — £650,000 • 4 bed • 2 bath • 1744 ft²
4 bedroom detached house for sale in Beach View Crescent, Wembury, PL9 — £650,000 • 4 bed • 3 bath • 1749 ft²
4 bedroom detached house for sale in Wembury, Plymouth, PL9 — £500,000 • 4 bed • 2 bath • 1357 ft²
4 bedroom house for sale in Wembury, Plymouth, PL9 — £1,150,000 • 4 bed • 3 bath • 1996 ft²
5 bedroom house for sale in Furzehill Road, Heybrook Bay, PL9 — £975,000 • 5 bed • 4 bath • 2495 ft²
3 bedroom detached house for sale in Langdon View, WEMBURY, South Devon, PL9 — £495,000 • 3 bed • 2 bath • 1222 ft²






































































































































