**Standout Features:**
- Individually-designed detached home with breathtaking sea views
- Spacious open-plan living area with bi-folding doors for seamless indoor-outdoor living
- Four double bedrooms, including a master suite with a private balcony
- Generous landscaped garden with decking, perfect for entertaining
- No onward chain, facilitating a swift purchase
- Quiet, affluent neighborhood with excellent community amenities
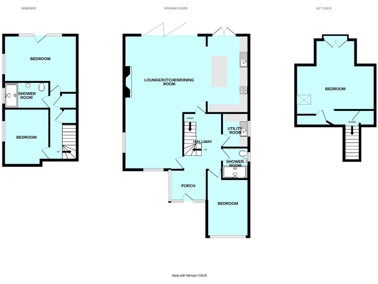
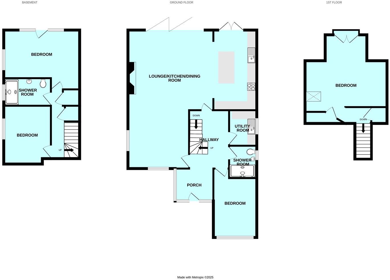
This remarkable detached property in Wembury is an exceptional find for families seeking a contemporary, well-designed home with stunning coastal views. Spanning three levels, the open-plan living area features abundant natural light, enhanced by bi-folding doors that lead to a beautifully landscaped garden with a large decking area—ideal for outdoor gatherings. The four spacious double bedrooms provide ample accommodation, with the master suite benefiting from a private balcony overlooking the valley and sea.
While the property is impressively maintained, potential buyers should consider the slow broadband speed, which may impact connectivity for work or study. With no onward chain, this home promises a seamless transition into a unique lifestyle enriched by local amenities and the tranquility of coastal living. Act quickly to secure this exclusive property, as opportunities like this in Wembury are rare.
4 bedroom detached house for sale in Beach View Crescent, Wembury, PL9 — £650,000 • 4 bed • 3 bath • 1749 ft²
4 bedroom house for sale in Wembury, Plymouth, PL9 — £540,000 • 4 bed • 2 bath • 1621 ft²
5 bedroom house for sale in Wembury Point, Plymouth, PL9 — £895,000 • 5 bed • 2 bath • 2000 ft²
4 bedroom detached house for sale in Wembury, Plymouth, PL9 — £500,000 • 4 bed • 2 bath • 1357 ft²
3 bedroom detached bungalow for sale in Hawthorn Park Road, Wembury, Plymouth., PL9 — £425,000 • 3 bed • 1 bath • 1323 ft²
3 bedroom detached house for sale in Mewstone Ave, Wembury, Plymouth., PL9 — £470,000 • 3 bed • 1 bath • 1225 ft²


























































































































































































