Affordable city-centre one-bedroom ideal for first-time buyers or holiday use.
- Freehold second-floor flat, one double bedroom
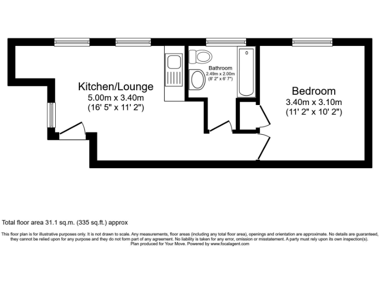
- Compact 335 sq ft; efficient open-plan layout
- Modern bathroom; double glazing present
- Central Ramsgate location close to the harbour
- EPC Grade E; likely energy inefficiency
- Electric room heaters; no mains gas
- Solid brick walls assumed without insulation
- Very high local crime and high deprivation
A compact second-floor freehold flat in central Ramsgate, suited to a first-time buyer or holiday homeowner looking for an affordable entry into the town. The one double bedroom and open-plan lounge/kitchen make efficient use of the 335 sq ft, while a modern bathroom offers a ready-to-use finish.
The flat’s strongest practical benefits are its central location near the harbour and low ongoing council tax (Band A). Being freehold removes leasehold complexity and the property has double glazing and modern bathroom fittings. Excellent mobile signal and average broadband keep the flat connected for work or leisure.
Buyers should note material drawbacks plainly: the building is older (pre‑1900) with solid brick walls likely without insulation, room heaters and electric-only fuel mean heating is inefficient and energy costs may be higher. The EPC is grade E. The immediate neighbourhood is classified as very deprived with very high crime rates — relevant for buyers considering safety, insurance and rental demand.
This is a budget-priced, small city-centre flat with clear potential for refurbishment to improve comfort and running costs. It will suit someone seeking a manageable, low-tax foothold in Ramsgate who is prepared to invest in insulation and heating upgrades, or an investor targeting short-term holiday lets with awareness of local area conditions.
1 bedroom flat for sale in Camden Square, Ramsgate, Kent, CT11 — £130,000 • 1 bed • 1 bath • 377 ft²
1 bedroom flat for sale in Harbour Parade, Ramsgate, Kent, CT11 — £125,000 • 1 bed • 1 bath • 420 ft²
1 bedroom flat for sale in Albion Hill, Ramsgate, Kent, CT11 — £165,000 • 1 bed • 1 bath
2 bedroom flat for sale in Harbour Parade, Ramsgate, CT11 — £194,995 • 2 bed • 1 bath • 589 ft²
1 bedroom flat for sale in Albert Street, Ramsgate, Kent, CT11 — £125,000 • 1 bed • 1 bath • 441 ft²
1 bedroom end of terrace house for sale in Kent Steps, Ramsgate, CT11 — £165,000 • 1 bed • 1 bath • 348 ft²


































