Spacious family living in a quiet, central Stock cul-de-sac with large garden.
Newly renovated and extended to high standard throughout
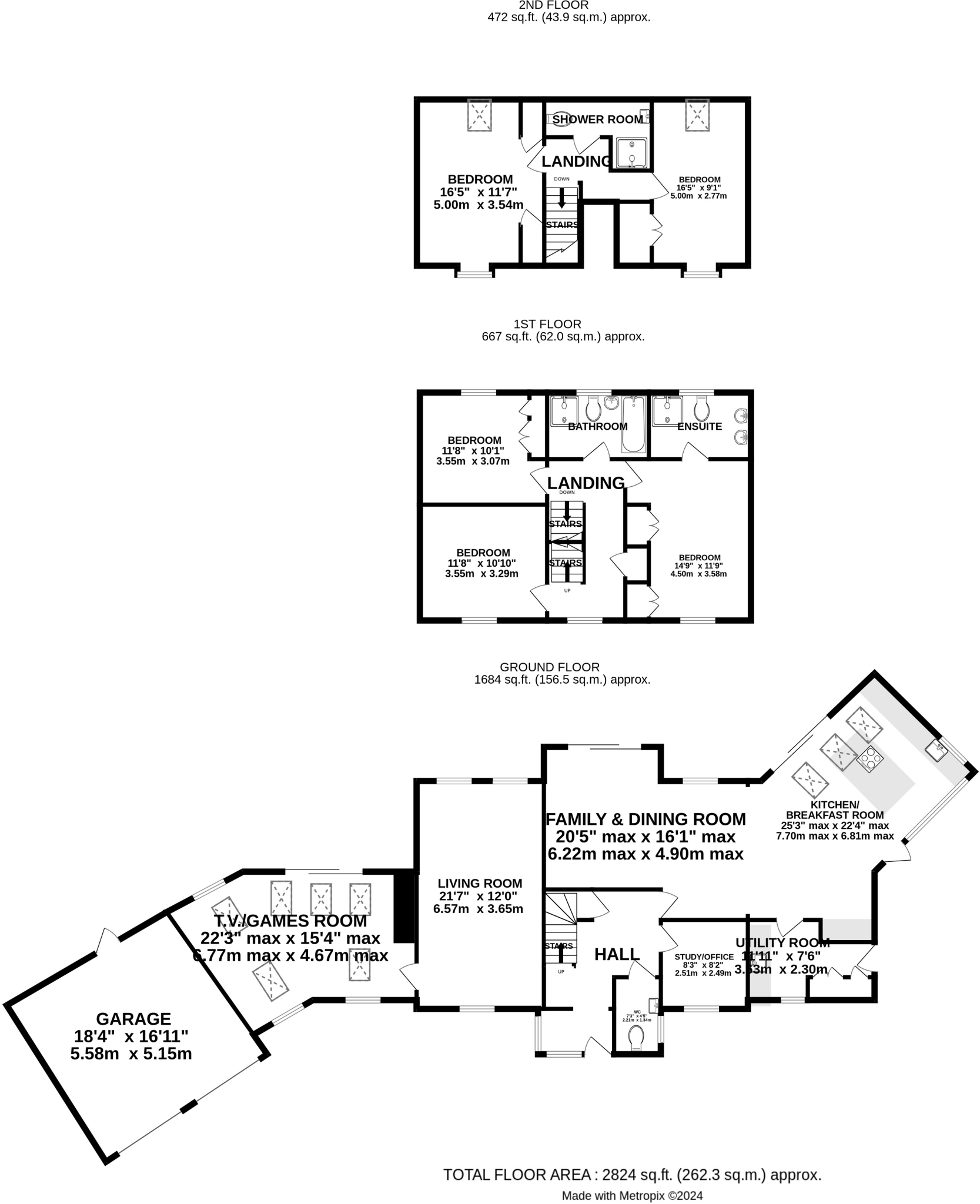
A substantial, newly renovated five-bedroom detached home arranged over three floors, set in a quiet cul-de-sac in the heart of Stock village. The house has been extended to create generous living space (about 2,513 sq ft) including a large open-plan kitchen/dining/living area that opens to a landscaped rear garden — ideal for family life and entertaining. A double garage and plenty of off-street parking sit behind an attractive frontage and large plot.
The property suits families who value village living with good local amenities: the primary school and village centre are within easy walking distance, while country walks, pubs and community facilities are moments away. Practical features include a study, utility, cloakroom, two en-suite shower rooms plus a separate family bathroom, and generally large rooms throughout. The home is freehold and has no flood risk.
Be aware this is a multi-storey house, so anyone seeking single-floor living should note the layout. Broadband speeds are average for the area. For families with older children, one nearby secondary (Mayflower High School) is rated as 'requires improvement' by Ofsted; other local schools include well-rated primaries and an independent option. Overall, this is a modern, well-presented family home in an affluent, low-crime village location with good road and rail links to the wider area.
 5 bedroom detached house for sale in Cambridge Close, Stock, Ingatestone, Essex, CM4 — £1,250,000 • 5 bed • 3 bath • 3000 ft²
 5 bedroom detached house for sale in Cambridge Close, Stock, Ingatestone, Essex, CM4 — £1,250,000 • 5 bed • 3 bath • 3000 ft² 3 bedroom semi-detached house for sale in Birch Lane, Stock, CM4 — £630,000 • 3 bed • 2 bath • 1840 ft²
 3 bedroom semi-detached house for sale in Birch Lane, Stock, CM4 — £630,000 • 3 bed • 2 bath • 1840 ft² 3 bedroom semi-detached house for sale in Austen Drive, Stock, CM4 — £625,000 • 3 bed • 1 bath • 919 ft²
 3 bedroom semi-detached house for sale in Austen Drive, Stock, CM4 — £625,000 • 3 bed • 1 bath • 919 ft² 4 bedroom detached house for sale in Cambridge Close, Ingatestone, CM4 — £875,000 • 4 bed • 2 bath • 1449 ft²
 4 bedroom detached house for sale in Cambridge Close, Ingatestone, CM4 — £875,000 • 4 bed • 2 bath • 1449 ft² 3 bedroom detached house for sale in Mill Road, Stock, Ingatestone, Essex, CM4 — £950,000 • 3 bed • 2 bath • 1439 ft²
 3 bedroom detached house for sale in Mill Road, Stock, Ingatestone, Essex, CM4 — £950,000 • 3 bed • 2 bath • 1439 ft² 4 bedroom semi-detached house for sale in Well Lane, Stock, CM4 — £950,000 • 4 bed • 2 bath • 1442 ft²
 4 bedroom semi-detached house for sale in Well Lane, Stock, CM4 — £950,000 • 4 bed • 2 bath • 1442 ft²










































































































