Classic Shere home with period charm and ready-to-live-in family spaces.
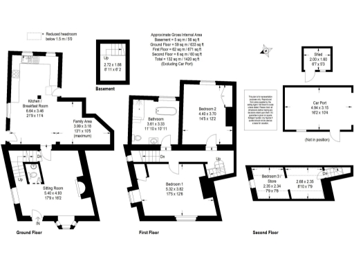
3 bedrooms (two doubles plus loft room) with village views
Spacious sitting room with open fireplace and solid oak floor
Large kitchen/breakfast open to family area and pantry/utility
Big bathroom: freestanding bath and walk-in wet-room style shower
Cellar provides useful storage below ground level
Rear garden with newly laid astro turf, patio and shed
Detached car port and off-street parking (access via village track)
Grade II listed — restrictions on alterations and potential maintenance implications
Set in the heart of historic Shere, this Grade II listed cottage combines period character with practical family living. The ground floor offers a spacious sitting room with an open fireplace, solid oak floor and beamed ceiling that lead through to a large kitchen/breakfast room open to a family area — a natural social hub for everyday life and entertaining.
Upstairs are two generous double bedrooms with village views, plus a loft room suitable for a child’s bedroom or home office (limited head height). The bathroom is unusually large for the village, with a freestanding bath and a walk-in wet-room style shower. There is also a useful cellar for storage.
Outside the rear garden has newly laid astro turf, a patio and a shed, with a detached car port and off-street parking beyond (accessed via the track opposite the William Bray pub). The cottage sits in an Area of Outstanding Natural Beauty and a conservation area with very low flood risk.
Important practical points: the Listed status and conservation area protections will restrict alterations and may complicate modernisation. The narrow staircase and reduced ceiling heights in places limit accessibility. Council tax is relatively high. Overall this is a character-rich, centrally located village home best suited to buyers valuing heritage, village life and ready-to-enjoy accommodation rather than extensive remodelling.
3 bedroom end of terrace house for sale in The Square, Shere, Guildford, Surrey, GU5 — £925,000 • 3 bed • 1 bath • 1551 ft²
4 bedroom link detached house for sale in Middle Street, Shere, GU5 — £1,150,000 • 4 bed • 2 bath • 1859 ft²
4 bedroom detached house for sale in Willow Walk, Shere, Guildford, Surrey, GU5 — £1,395,000 • 4 bed • 3 bath • 2511 ft²
2 bedroom cottage for sale in Little London, Albury, Guildford, GU5 9DG, GU5 — £800,000 • 2 bed • 2 bath • 1286 ft²
3 bedroom detached house for sale in Goose Green, Gomshall, Guildford, GU5 — £900,000 • 3 bed • 2 bath • 2623 ft²
3 bedroom semi-detached house for sale in High View, Gomshall, GU5 — £800,000 • 3 bed • 1 bath • 1246 ft²














































































































































