**Standout Features:**
- **Investment Potential:** Projected income of £54,000 PA from planning-approved project (CHE/22/00093/FUL).
- **Prime Location:** Located on a vibrant High Street near local amenities and transport links, including the Chesterfield canal and Chesterfield Train Station.
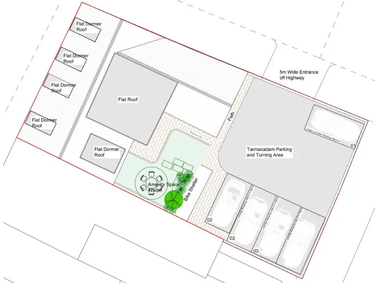
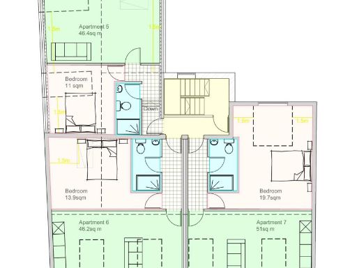
- **Planning Permission:** Approved for partial demolition and development of 3 ground-floor shop units and 6 one-bedroom apartments.
- **Gated Parking:** Includes off-street parking for five vehicles and designated bike storage.
- **Community and Education:** Good local schools nearby with strong Ofsted ratings, perfect for families or tenants.
**Summary:**
This superb commercial property offers a fantastic investment opportunity in a sought-after High Street location in Old Whittington, Chesterfield. With planning permission recently granted for three retail units and six modern one-bedroom apartments, this site is ready to generate a projected income of £54,000 per annum. The versatile layout features open-plan living spaces within the residential units, providing ideal living conditions for future tenants.
Enjoy the benefit of off-street gated parking and shared communal gardens, enhancing appeal for residents. Growth potential is significant in this area known for its solid community amenities, good schools, and convenient access to transport links ensuring long-term demand. While the current structure requires partial demolition for redevelopment, the foundation is set for a thriving business and residential hub.
Don’t miss your chance to secure this exclusive opportunity – properties of this caliber are rare and won’t last long!
High street retail property for sale in St. Marys Gate, Chesterfield, Derbyshire, S41 — £425,000 • 1 bed • 1 bath • 1800 ft²
4 bedroom block of apartments for sale in Church Street North, Old Whittington, Chesterfield, S41 9QN, S41 — £550,000 • 4 bed • 5 bath • 3000 ft²
Office for sale in 100 Saltergate, Chesterfield, Denbighshire S40 1LG, S40 — £400,000 • 1 bed • 1 bath • 3175 ft²
Commercial property for sale in 363 Sheffield Road, Chesterfield, Derbyshire S41 8LL, S41 — £70,000 • 1 bed • 1 bath
Residential development for sale in Holbeck Close, Chesterfield, S41 7XH, S41 — £1,900,000 • 1 bed • 1 bath
Commercial property for sale in Old Town Hall, High Street, Dronfield, S18 1PY, S18 — £700,000 • 1 bed • 1 bath • 5429 ft²






























































































