S18 1PY - Commercial property for sale in Old Town Hall, High Street,…

View on Property Piper

Commercial property for sale in Old Town Hall, High Street, Dronfield, S18 1PY, S18

Summary - 2, HIGH STREET S18 1PY

1 bed 1 bath Commercial Property

**Standout Features:**
- Historic stone building dating back to 1877
- Prominent High Street location in Dronfield
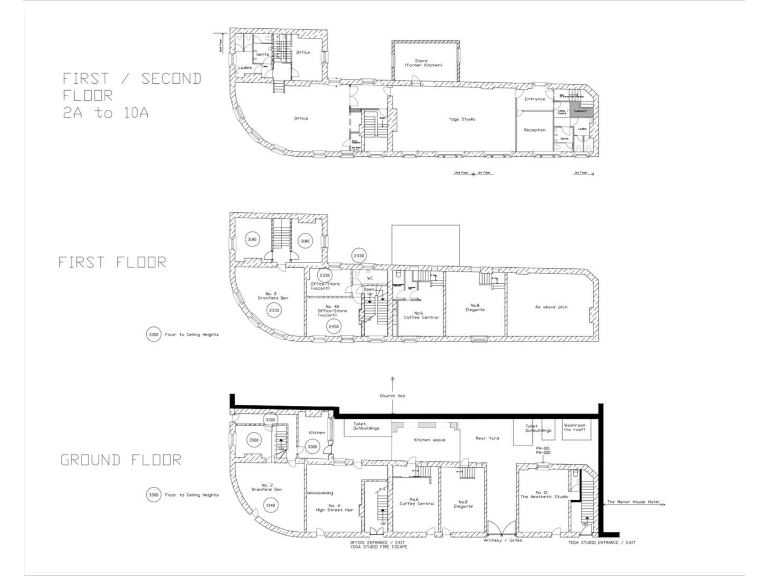
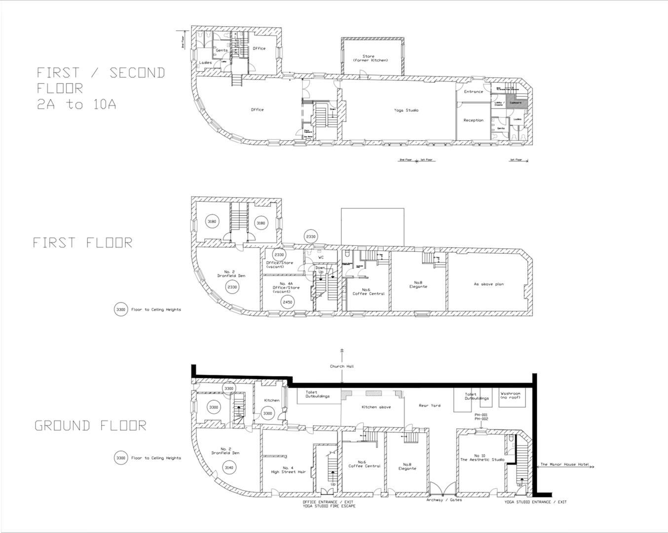
- Approximately 5,429 square feet of versatile space
- Currently generating £55,000 annual income from 7 tenants
- Approved planning for conversion to 3 residential apartments
- Off-street parking for approximately 5 vehicles
- Connected to all mains services

This impressive Victorian commercial property, nestled in the vibrant heart of Dronfield, presents a rare investment opportunity. Spanning over 5,400 square feet, this stone-built gem features seven existing tenants contributing an annual income of about £55,000, making it an attractive option for savvy investors. The well-maintained building, with high ceilings and a historic facade, is ripe for further revenue enhancement, especially with planning permission already secured for transforming the first floor into three modern apartments.

While the property boasts significant income potential, prospective buyers should be aware of the ongoing need for maintenance primarily concerning the heating setup in the ground-floor retail units. The current configuration allows for diverse commercial applications, further supported by its prime location surrounded by a mix of retail and services. Additionally, the presence of off-street parking and a public car park nearby enhances accessibility for customers.

Don’t miss out on this unique blend of historical charm and investment potential in a thriving community. With the possibility for expansion and adaptation, this property is poised for long-term profitability in Dronfield’s growing market. Schedule a viewing today to explore the opportunities that await!

Property Details

Brochure Descriptions

Image Descriptions

Floorplan Description

Textual Property Features

Detected Visual Features

Nearby Schools

Nearest Bars And Restaurants

,,,,}

Nearest General Shops

,,}

Nearest Grocery shops

,,}

Nearest Supermarkets

,,}

Nearest Religious buildings

,,}

Nearest Medical buildings

,,,}

Nearest Leisure Facilities

,,,,}

Nearest Tourist attractions

,,}

Nearest Train stations

,,,,}

Nearest Bus stations and stops

,,,,}

Nearest Hotels

,,}

Tags

Local Market Stats

Similar Properties

Meta

High Res Images

Compatible Images

Low res Images

Thumbnails

Raw Images

High Res Floorplan Images

Compatible Floorplan Images

Low res Floorplan Images

FloorplanImages Thumbnail

Raw Floorplan Images