Immediate, low-maintenance rental income close to Dewsbury station and commuter links.
Sold with tenant in situ, immediate £750pcm income (7% net yield reported)
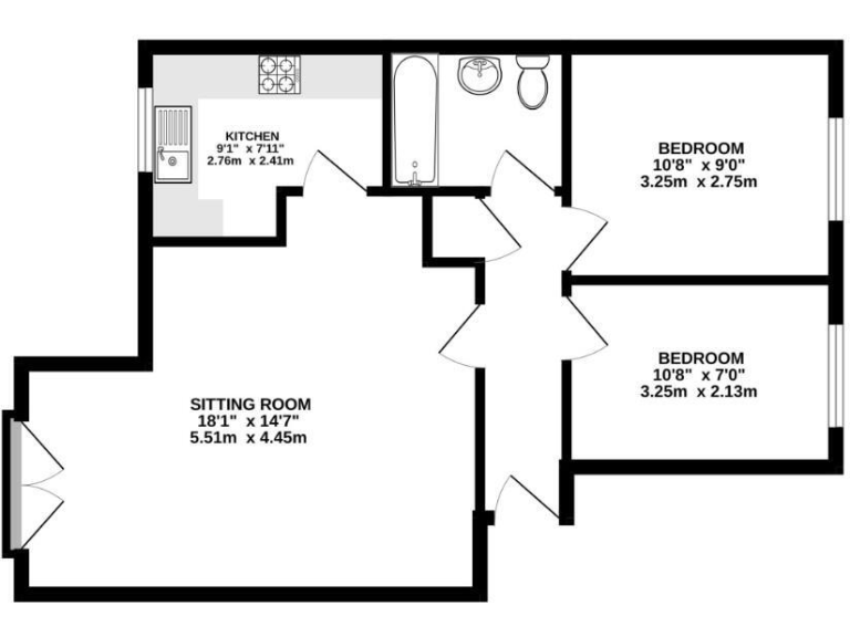
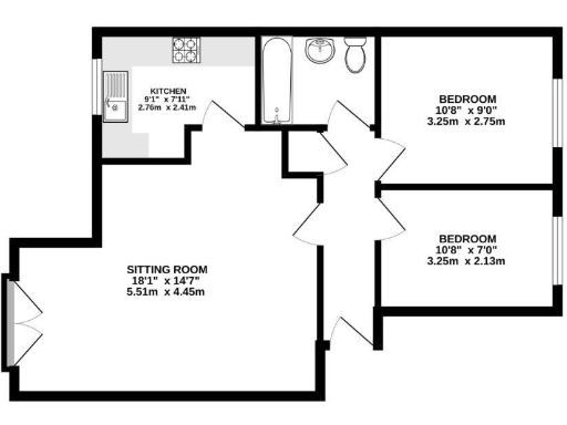
Compact two-bedroom flat, approximately 506 sqft
Modern open-plan living area with integrated kitchen appliances
105 years remaining on lease; leasehold tenure
Annual service charge £1,718.36; ground rent £231.79
Electric room heaters only—higher running costs likely
Medium flood risk and above-average local crime levels
Located close to Dewsbury station and town centre amenities
A ready-made income opportunity in Dewsbury, sold with a reliable tenant paying £750pcm and offering a reported 7% net yield. The modern two-bedroom flat sits in a well-maintained development close to Dewsbury train station and local amenities, providing immediate rental income and strong commuter appeal to Leeds, Wakefield and Huddersfield.
The accommodation is compact (approximately 506 sqft) with an open-plan living area and a contemporary fitted kitchen with integrated appliances. The building is relatively new (post-2007 construction), double-glazed, and comes with a 105-year lease remaining, making it straightforward for portfolio managers seeking low-touch assets.
Running costs and location factors to note: the property uses electric room heaters rather than central gas heating, which may increase ongoing energy bills. Annual service charge (£1,718.36) and ground rent (£231.79) apply. The area records above-average crime and is described as very deprived locally; there is also a medium flooding risk. These factors affect long-term capital growth and tenant demand, and should be weighed alongside the immediate income.
Overall, this apartment suits investors prioritising immediate, hands-off rental returns in a commuter town. It presents predictable cashflow with modest management requirements but requires acceptance of higher local social challenges, electric heating costs and regular service charges.
2 bedroom flat for sale in Moorlands Avenue West, Dewsbury, WF13 — £100,000 • 2 bed • 1 bath • 624 ft²
2 bedroom apartment for sale in Ellis Court, Textile Street, Dewsbury, WF13 — £90,000 • 2 bed • 2 bath • 657 ft²
2 bedroom apartment for sale in Rotary Close, Dewsbury, WF13 — £80,000 • 2 bed • 2 bath • 684 ft²
2 bedroom flat for sale in Highfield Chase, Dewsbury, West Yorkshire, WF13 — £80,000 • 2 bed • 1 bath • 562 ft²
2 bedroom apartment for sale in Bradford Road, Dewsbury, WF13 — £85,000 • 2 bed • 2 bath • 756 ft²
1 bedroom apartment for sale in Textile Street, Dewsbury, WF13 — £55,000 • 1 bed • 1 bath • 368 ft²






















