Tenanted duplex in a converted mill, close to Dewsbury station and town centre.
Tenanted investment apartment, two double bedrooms
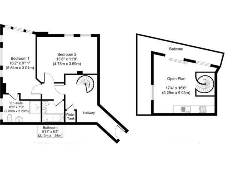
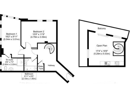
A tenanted investment opportunity in a converted mill duplex close to Dewsbury town centre and railway station. The top-floor layout provides two double bedrooms, an en suite shower room, a further bathroom and an open-plan living/kitchen leading to a balcony terrace. Period features and high ceilings give the apartment character while a compact spiral staircase links the split levels.
Practical communal amenities include lift access, a communal gym and residents’ off-street parking. The property is offered leasehold with an exceptionally long lease (973 years). Annual charges include a service charge of approximately £2,900 and ground rent of £150. EPC rating D and Council Tax band B are recorded.
Important market considerations: the flat is sold tenanted so it suits investors seeking an income stream rather than an immediate owner-occupier. The building sits in an area recorded as very deprived with very high crime levels, which will affect tenant demand and resale comparables. Heating runs on electricity with a boiler and radiators; glazing is double but install date is unknown. Prospective buyers should factor in service charges and local area indicators when assessing income and capital-growth potential.
2 bedroom apartment for sale in Rotary Close, Dewsbury, WF13 — £80,000 • 2 bed • 2 bath • 684 ft²
1 bedroom apartment for sale in Textile Street, Dewsbury, West Yorkshire, WF13 — £60,000 • 1 bed • 1 bath • 482 ft²
2 bedroom flat for sale in Bradford Road, Dewsbury, WF13 — £70,000 • 2 bed • 1 bath • 800 ft²
2 bedroom apartment for sale in Halifax Road, Dewsbury, WF13 — £80,000 • 2 bed • 1 bath • 852 ft²
2 bedroom house for sale in College View, Dewsbury, WF13 — £75,000 • 2 bed • 1 bath • 646 ft²
2 bedroom apartment for sale in Mill House, Textile Street, Dewsbury, West Yorkshire, WF13 — £80,000 • 2 bed • 2 bath • 668 ft²










































