Low-maintenance retirement living with on-site manager and communal facilities.
One-bedroom first-floor apartment with Juliet balcony and garden views
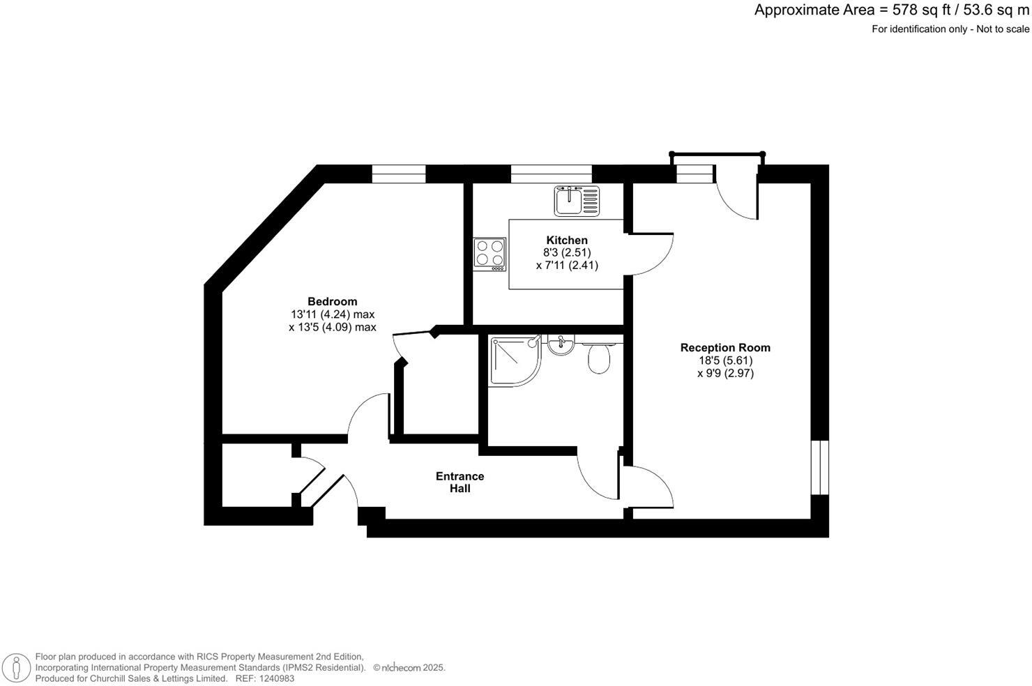
This one-bedroom first-floor retirement apartment at Eleanor Lodge offers bright, manageable accommodation with a Juliet balcony overlooking the communal gardens. The living room provides space for sitting and dining, the bedroom includes a walk-in wardrobe, and the fitted kitchen has integrated appliances — all arranged on a single, easy-care level.
The development is purpose-built for older owners and includes an on-site Lodge Manager five days a week, a 24/7 monitored Careline, secure video entry, lift access to every floor and owners’ private parking. There’s also a guest suite for visiting family and reciprocal use of guest suites at other Churchill Living developments.
Practical running costs and tenure are important to note: the annual service charge is £4,023.86 and ground rent is £575 per year. The lease is exceptionally long (effectively 976–999 years remaining). Heating is provided by a community scheme with air-source technology included in the service charge.
Eleanor Lodge sits in Knowle, a largely affluent suburb with fast broadband and excellent mobile signal, close to local shops and amenities. Be aware the local crime rating is above average; consider viewing to assess the setting and communal measures for peace of mind.
1 bedroom retirement property for sale in Eleanor Lodge, Knowle, Solihull, B93 — £289,950 • 1 bed • 1 bath • 574 ft²
2 bedroom retirement property for sale in Eleanor Lodge, Knowle, Solihull, B93 — £425,000 • 2 bed • 2 bath • 913 ft²
1 bedroom apartment for sale in Station Road, Knowle, Solihull, B93 — £275,000 • 1 bed • 1 bath • 487 ft²
1 bedroom apartment for sale in Station Road, Knowle, B93 — £230,000 • 1 bed • 1 bath • 581 ft²
2 bedroom apartment for sale in Station Road, Knowle, B93 — £425,000 • 2 bed • 2 bath • 846 ft²
2 bedroom retirement property for sale in Highbury Lodge, Kings Heath, Birmingham, B14 — £349,950 • 2 bed • 2 bath • 741 ft²






















































