Comfortable, secure retirement living with gardens and guest suite access.
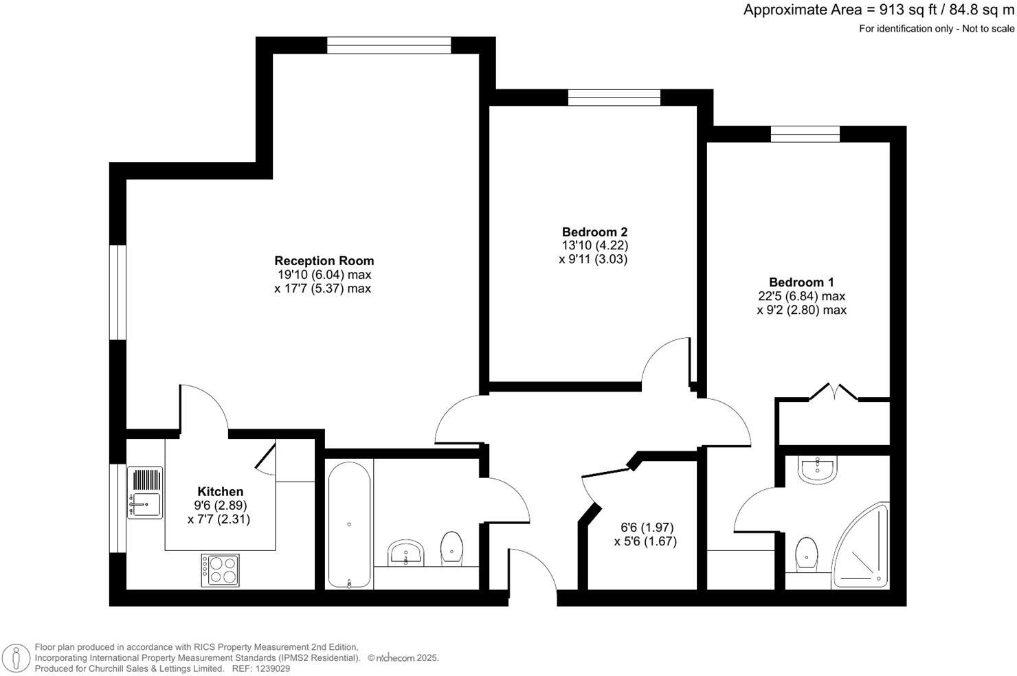
Second-floor two-bedroom retirement apartment with ensuite to main bedroom
A bright, well-presented two-bedroom retirement apartment on the second floor of Eleanor Lodge, designed for comfortable, low-maintenance living. Dual-aspect windows fill the living room with natural light, while a modern fitted kitchen and ensuite to the principal bedroom provide everyday convenience. The development includes a Lodge Manager (five days a week), a monitored Careline system, secure entry, and lift access to all floors for added peace of mind.
Outside, mature, well-kept communal gardens and private off-street parking create pleasant grounds for strolls and visitors. Owners can book an on-site Guest Suite for family stays and access Guest Suites at other Churchill Living developments. The apartment benefits from air-source heating connected to the community scheme and useful internal storage.
This apartment suits retirees seeking an active social setting with on-site support and security. Practical points to note: the property is leasehold (long lease of 999 years from 2020) and attracts a service charge of £6,049.47 per annum. Ground rent is £625 per annum (next review 2030) and council tax sits at Band E. These costs cover many communal services but should be factored into ongoing affordability.
Eleanor Lodge sits in Knowle, a well-regarded suburb three miles from Solihull with easy access to local shops, cafes and transport links. The development’s communal programme and on-site manager make it appealing for buyers who want social opportunities and help with property upkeep, while the building’s security and emergency systems provide reassurance for independent living.
1 bedroom retirement property for sale in Eleanor Lodge, Knowle, Solihull, B93 — £230,000 • 1 bed • 1 bath • 578 ft²
1 bedroom retirement property for sale in Eleanor Lodge, Knowle, Solihull, B93 — £289,950 • 1 bed • 1 bath • 574 ft²
1 bedroom apartment for sale in Station Road, Knowle, Solihull, B93 — £275,000 • 1 bed • 1 bath • 487 ft²
2 bedroom apartment for sale in Station Road, Knowle, B93 — £425,000 • 2 bed • 2 bath • 846 ft²
1 bedroom apartment for sale in Station Road, Knowle, B93 — £230,000 • 1 bed • 1 bath • 581 ft²
2 bedroom retirement property for sale in Tudor Lodge, Solihull, B92 — £189,995 • 2 bed • 1 bath • 786 ft²


























































