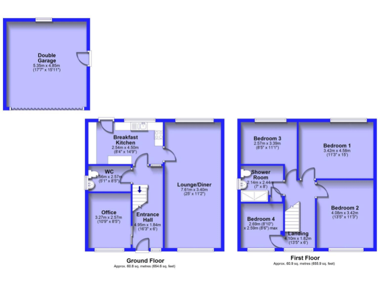
**Standout Features:**
- Detached family home with 4 bedrooms and 1 bathroom
- Immaculate condition, owned for four decades
- Double garage and tarmac driveway for ample parking
- Beautifully maintained gardens front and rear
- Located in a family-friendly residential area
- Close proximity to reputable primary schools
- Freehold tenure, Council Tax Band E, and EPC Rating D
- Renovation potential with space to modernize and extend
This cherished detached family home, nestled in the desirable village of Langho, is ready for its next chapter. Spanning an average size of 1,311 sq ft on a generously sized plot, this property features beautifully kept gardens both in the front and back—perfect for family gatherings or tranquil evenings. The spacious entrance leads you to a versatile living arrangement, complete with a large lounge diner that benefits from natural light on both ends and a separate room ideal for a playroom or home office.
While the home has been lovingly maintained, it does present an excellent opportunity for modernization. With the potential to extend (subject to approval), this residence offers a blank canvas for families looking to create their perfect living space. Located just a short stroll from local primary schools and within the Ribble Valley catchment area, it ensures excellent education options for young families.
Don’t miss out on the chance to secure a home with such promising future potential—early viewing is highly recommended, as homes in this sought-after area are sure to attract attention.
4 bedroom detached house for sale in Rogersfield, Langho, Blackburn, Lancashire, BB6 — £425,000 • 4 bed • 1 bath • 1527 ft²
4 bedroom detached house for sale in Higherfield, Langho, BB6 — £370,000 • 4 bed • 2 bath • 1443 ft²
4 bedroom detached house for sale in Midfield, Langho, BB6 — £485,000 • 4 bed • 3 bath • 1550 ft²
4 bedroom detached house for sale in Rogersfield, Langho, BB6 — £480,000 • 4 bed • 2 bath • 1367 ft²
4 bedroom detached house for sale in Rogersfield, Langho, Ribble Valley BB6 — £550,000 • 4 bed • 2 bath • 2371 ft²
4 bedroom detached house for sale in Whitehalgh Lane, Langho, BB6 — £499,950 • 4 bed • 2 bath • 2158 ft²


































































































