South-facing garden, garage and rapid trains to London and Cambridge.
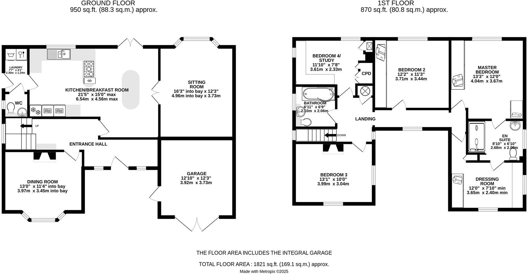
Four double bedrooms, master with ensuite and dressing room potential fifth bedroom
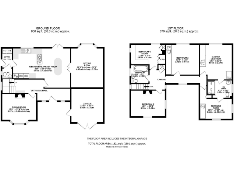
Set on a generous plot adjoining an open green, this 1925 Tudor‑Revival detached house offers spacious family living close to the town centre and mainline station. The house’s heart is a contemporary kitchen/breakfast room with underfloor heating, complemented by two reception rooms and integral garage with private driveway. South‑facing rear garden and high broadband speeds suit modern family life and home working.
The property has been sympathetically extended (1982) and was re‑tiled in early 2025, so major external work is recent. Practical comforts include gas central heating, double glazing and electric underfloor heating in the kitchen and shower rooms. The plot (approx. 25.5m x 13.7m) provides scope for garden landscaping or modest rear extension subject to Conservation Area controls.
Buyers should note material constraints: the house is solid brick (original build) with assumed no cavity insulation in older walls and an EPC band D, so thermal upgrades could be needed. The property sits inside the Letchworth Conservation Area and is subject to Heritage Foundation planning requirements and possible restrictive covenants, which limit some alterations. Council Tax is high (Band F) and the local recorded crime level is above average.
For a family wanting period character, generous living space and immediate access to excellent schools and fast rail links to London and Cambridge, this house balances ready‑to‑use living areas with clear potential to add value through energy and cosmetic improvements.
5 bedroom semi-detached house for sale in Norton Way South, Letchworth Garden City, SG6 — £825,000 • 5 bed • 2 bath • 1464 ft²
4 bedroom detached house for sale in Willian Way, Letchworth Garden City, SG6 — £1,450,000 • 4 bed • 2 bath • 2554 ft²
3 bedroom semi-detached house for sale in Romany Close, Letchworth Garden City, SG6 — £400,000 • 3 bed • 1 bath • 868 ft²
4 bedroom terraced house for sale in Norton Way South, Letchworth, SG6 — £800,000 • 4 bed • 1 bath • 1895 ft²
4 bedroom detached house for sale in Bell Acre, Letchworth Garden City, SG6 — £600,000 • 4 bed • 2 bath • 909 ft²
3 bedroom detached house for sale in Kristiansand Way, Letchworth Garden City, SG6 1TU, SG6 — £550,000 • 3 bed • 2 bath • 1227 ft²


















































































