Large plot, garage and excellent transport links for family life.
Spacious four-bedroom detached family home
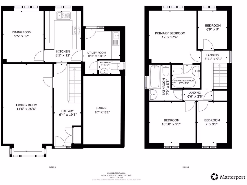
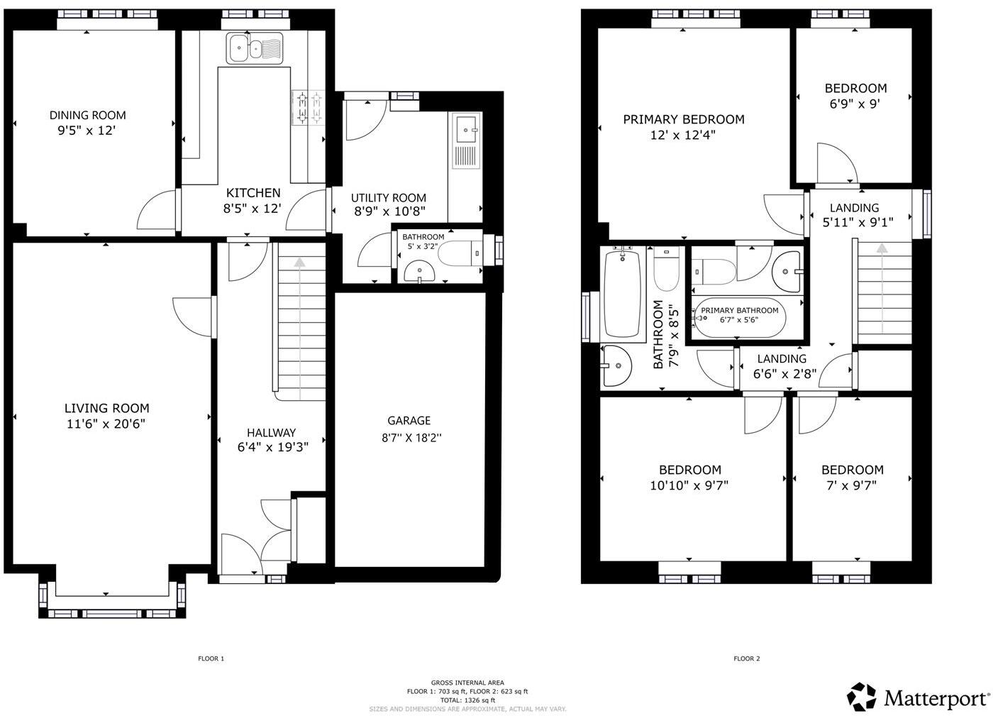
Set in a quiet cul‑de‑sac in Pencoed, this four‑bedroom detached house delivers practical family living across two well‑proportioned floors. The ground floor has a large bay‑front living room, separate dining room and a fitted kitchen with adjoining utility — useful for everyday family routines. The master bedroom benefits from an en‑suite and there are two further doubles plus a single bedroom and family bathroom upstairs.
Outside, the property sits on a generous plot with a driveway, integral single garage and gated side access to a sizeable rear garden with a patio area — good for children and outdoor entertaining. The location offers easy access to the Bridgend–Cardiff rail line, the M4 and local services, making commutes and school runs straightforward.
Practical details include mains gas central heating to radiators, double glazing and an internal garage with power and light. The house was built in the early 1990s and presents in sound, lived‑in condition but would benefit from minor cosmetic updating to reflect modern tastes.
Important considerations: the EPC is rated D, council tax is above average and the surrounding area records higher levels of deprivation. These factors are worth weighing alongside the strong plot size, layout and transport links when assessing long‑term running costs and resale potential.
4 bedroom detached house for sale in Clos Penglyn, Pencoed, Bridgend, CF35 — £360,000 • 4 bed • 2 bath • 1151 ft²
4 bedroom detached house for sale in Clos Penglyn, Pencoed, CF35 — £349,950 • 4 bed • 2 bath • 1311 ft²
4 bedroom detached house for sale in Pant Ardwyn, Pencoed, Bridgend County. CF35 6LJ, CF35 — £395,000 • 4 bed • 2 bath • 1346 ft²
4 bedroom detached house for sale in Vale Reach, Pencoed, Bridgend, CF35 — £382,000 • 4 bed • 2 bath • 1474 ft²
4 bedroom detached house for sale in Mervyn Way, Pencoed, Bridgend, CF35 — £335,000 • 4 bed • 2 bath • 1562 ft²
3 bedroom detached bungalow for sale in Blaen Y Fro, Pencoed, Bridgend, CF35 — £260,000 • 3 bed • 1 bath • 662 ft²






















































