Bright third-floor flat opposite parkland, ideal for a professional or couple.
- Third-floor apartment with direct Primrose Hill views
- Spacious reception room with abundant natural light
- Double bedroom with ensuite bathroom
- Secure block with porterage and share of freehold
- Very long lease (circa 960 years)
- Service charge circa £9,188 per year (expensive)
- Solid brick walls; likely limited insulation
- Community mains gas heating; compact kitchen and bathroom
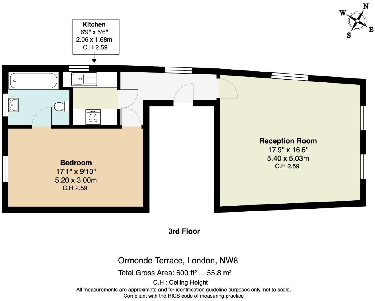
A bright one-bedroom apartment occupying the third floor of a secure Georgian block directly opposite Primrose Hill. The flat feels roomy for its size (around 600 sq ft) with high ceilings in parts, large windows and leafy park views that bring in excellent natural light.
Accommodation comprises a spacious reception room, separate kitchen, double bedroom and an ensuite bathroom. The building benefits from porterage, a very long lease (c.960 years) and share of freehold ownership, making the tenure straightforward. Transport links are strong with several nearby Underground stations and easy access to the cafés and boutiques of Primrose Hill Village.
Practical points to note: service charges are high (about £9,188 pa) and the building’s solid-brick construction suggests limited wall insulation. Heating is supplied by a community mains gas scheme. The flat is well presented but the kitchen and bathroom are compact and would benefit from updating for buyers seeking a more modern finish.
1 bedroom apartment for sale in Ormonde Terrace, St John's Wood, London, NW8 — £595,000 • 1 bed • 1 bath • 600 ft²
1 bedroom apartment for sale in Ormonde Terrace, London, NW8 — £550,000 • 1 bed • 1 bath • 596 ft²
Studio apartment for sale in Ormonde Terrace, London, NW8 — £400,000 • 1 bed • 1 bath • 303 ft²
1 bedroom apartment for sale in Ormonde Terrace, St John's Wood, London, NW8 — £350,000 • 1 bed • 1 bath • 339 ft²
2 bedroom apartment for sale in Ormonde Terrace, London, NW8 — £1,350,000 • 2 bed • 1 bath • 995 ft²
2 bedroom flat for sale in Elsworthy Terrace, Primrose Hill, London, NW3 — £1,295,000 • 2 bed • 1 bath • 983 ft²


























































