OX20 1XR - 3 bedroom house for sale in Woodstock, OX20

View on Property Piper

3 bedroom house for sale in Woodstock, OX20

Summary - 57 MANOR ROAD WOODSTOCK OX20 1XR

3 bed 1 bath House

Character-filled home beside Blenheim Park — perfect for families who value history.
Grade II listed 18th-century stone cottage next to Blenheim Palace grounds
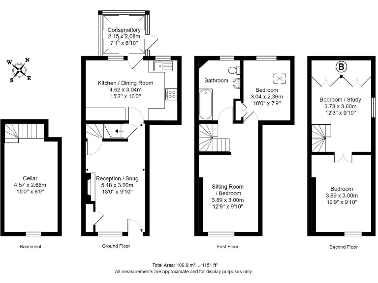
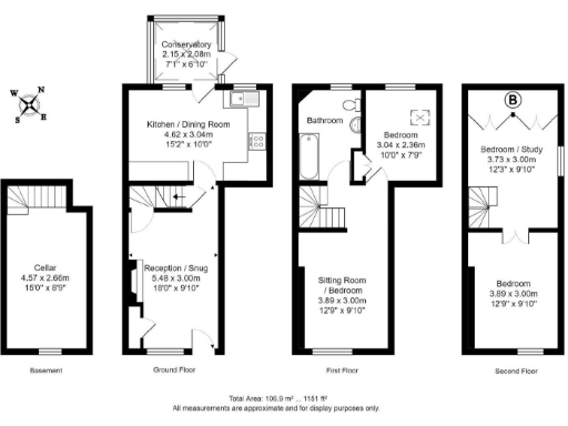
An 18th-century stone cottage set directly beside the historic Blenheim Palace grounds, this Grade II listed mid-terrace home marries period charm with practical family living. The sitting room centres on a cosy log-burning stove; a kitchen/dining room leads to a conservatory and there is a recently updated cellar for storage or utility use. Outside, a well-kept front garden and a smaller rear courtyard provide private outdoor space on a notably large plot for the town.

Accommodation is arranged over three floors and suits a family or professional household seeking character within easy reach of Oxford. The layout includes two bedrooms and a family bathroom on the first floor, with a master bedroom and a useful office/dressing area on the second floor — flexible rooms that can adapt to home-working or a growing family.

Buyers should note material considerations: the property is Grade II listed, which will restrict alterations and may complicate maintenance and permissions. The stone walls are assumed to have no insulation, glazing is secondary, and the EPC is D, so energy upgrades will be limited by listed-status constraints. There is a single bathroom and some period features will require sensitive upkeep. For those who value atmosphere, immediate access to Blenheim Park, excellent local schools and fast transport links, this house offers rare location and character, but it suits buyers prepared for conservation-led maintenance and costs.

Property Details

Brochure Descriptions

Image Descriptions

Floorplan Description

Rooms

Textual Property Features

Target Audience

AI Tags

Detected Visual Features

EPC Details

Nearby Schools

Nearest Bars And Restaurants

,,,,}

Nearest General Shops

,,}

Nearest Grocery shops

,,}

Nearest Supermarkets

,,}

Nearest Religious buildings

,,}

Nearest Medical buildings

,,,}

Nearest Leisure Facilities

,,,,}

Nearest Tourist attractions

,,}

Nearest Train stations

,,,,}

Nearest Bus stations and stops

,,,,}

Nearest Hotels

,,}

Tags

Local Market Stats

AirBnB Data

Similar Properties

Meta

High Res Images

Compatible Images

Low res Images

Thumbnails

Raw Images

High Res Floorplan Images

Compatible Floorplan Images

Low res Floorplan Images

FloorplanImages Thumbnail

Raw Floorplan Images