Large plot, versatile living and countryside views — strong family home with extensive outdoor space.
Three double bedrooms, each with an en-suite bathroom
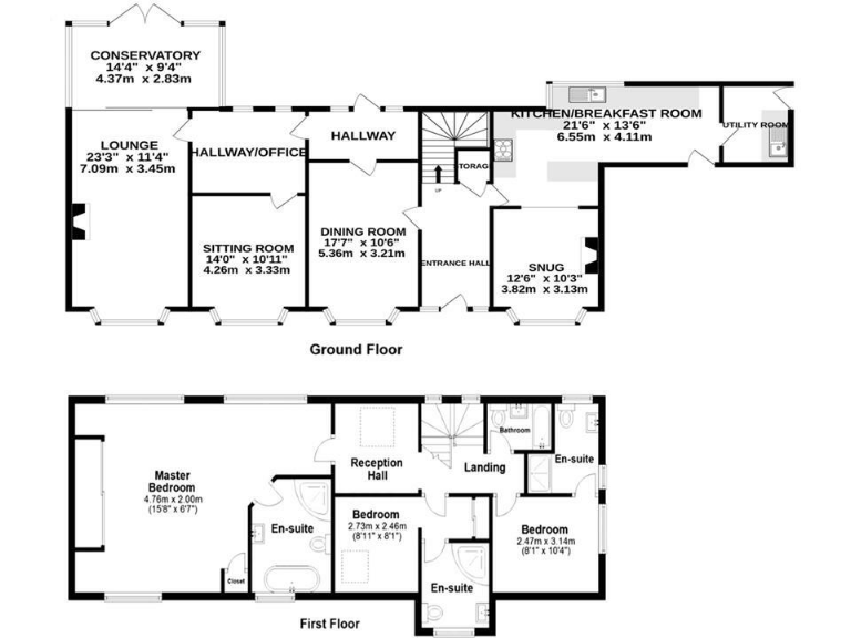
Set at the end of a quiet cul-de-sac in a rural fringe of Preesall, this substantial three-bedroom detached home sits on a very large plot with open-aspect rear views. The house offers generous living space across multiple reception rooms — formal lounge, sitting room, dining room, snug and a south-west facing conservatory — delivering flexibility for family life, home working and entertaining.
Bedrooms are well-proportioned: a large principal suite with a four-piece en-suite, plus two further double bedrooms each with en-suite facilities. The kitchen/breakfast room opens to a practical utility and snug area, while ground-floor office space and plentiful built-in storage increase everyday convenience. Outside, manicured front gardens, extensive block-paved parking for numerous vehicles and a detached double garage (power, lighting, water) add real practicality for families or hobbyists.
The rear garden is a key selling point — immaculately maintained lawns, established borders, loose-gravel patio and a dedicated bar area create a private social space ideal for summer gatherings and countryside living. For buyers seeking a move-in-ready family home with significant outdoor amenity, this property delivers both size and scope.
Buyers should note a few important facts: drainage is to a septic tank, broadband speeds are reported as very slow, and the property is an older build (circa 1930–49) with double glazing of unknown installation date. Council Tax is in an expensive band (F). These points are practical considerations for people valuing modern connectivity or planning significant upgrades.
5 bedroom detached house for sale in Park Lane, Preesall, FY6 — £400,000 • 5 bed • 2 bath • 1933 ft²
4 bedroom detached house for sale in Pilling Lane, Preesall, Poulton Le Fylde, FY6 — £425,000 • 4 bed • 2 bath • 1541 ft²
5 bedroom detached house for sale in Hackensall Road, Poulton-le-fylde, FY6 — £425,000 • 5 bed • 2 bath • 1783 ft²
4 bedroom detached house for sale in Park Lane, Preesall, Poulton-le-Fylde, Lancashire, FY6 — £500,000 • 4 bed • 1 bath • 1488 ft²
3 bedroom detached house for sale in Sandy Lane, Preesall, Poulton Le Fylde, FY6 — £389,950 • 3 bed • 2 bath • 1146 ft²
4 bedroom detached house for sale in Hackensall Road, Knott End On Sea, Poulton-le-Fylde, FY6 — £399,950 • 4 bed • 3 bath


















































































































































