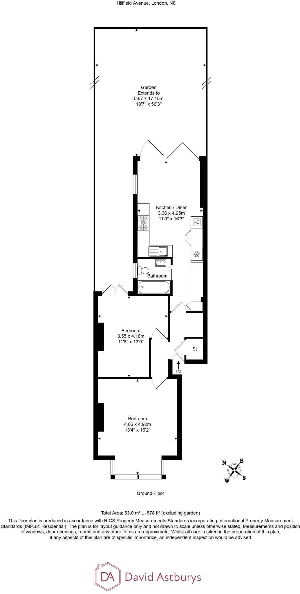
Ground-floor two-bedroom flat with private landscaped garden
Set back on sought-after Hillfield Avenue, this ground-floor two-bedroom flat combines Victorian character with a contemporary rear extension and private landscaped garden. The principal bedroom retains a high-ceilinged bay with original fireplace and cornicing, while the open-plan kitchen/reception flows through bi-fold doors to an outdoor entertaining area — a rare ground-floor layout with direct garden access.
Practical details support everyday comfort: share of freehold with a very long underlying lease (999 years from 24 June 1975), mains gas boiler and radiators, and double glazing (install date unknown). The flat’s 678 sq ft works well for first-time buyers, professionals or couples seeking a ready-to-move-in home in a well-connected North London location — Hornsey station is about 0.2 miles away and several good primary and secondary schools are within walking distance.
Buyers should note a few material points: the building is a Victorian mid-terrace with solid brick walls likely without cavity insulation, so heating costs may be higher than newer stock. The service charge is handled ad hoc with the co-freeholder (no formal sinking fund schedule provided). The area records higher crime levels than average; ground-floor position may be less private and requires sensible security measures. Broadband speeds are average.
Overall this property is best suited to buyers who value period detail, outdoor space and immediate access to transport and schools, and who are comfortable managing modest retrofit or security upgrades rather than seeking a fully modern, low-maintenance building.
2 bedroom apartment for sale in Hillfield Avenue, London, N8 — £675,000 • 2 bed • 1 bath • 1038 ft²
2 bedroom apartment for sale in Ferme Park Road, Crouch End N8 — £600,000 • 2 bed • 1 bath • 741 ft²
2 bedroom apartment for sale in Hillfield Avenue, Hornsey N8 — £475,000 • 2 bed • 1 bath • 636 ft²
2 bedroom apartment for sale in Glebe Road, Crouch End N8 — £775,000 • 2 bed • 1 bath • 862 ft²
2 bedroom apartment for sale in Ferme Park Road, Crouch End N8 — £675,000 • 2 bed • 1 bath • 654 ft²
2 bedroom flat for sale in Hornsey Park Road, London, N8 — £425,000 • 2 bed • 1 bath • 796 ft²






























































