Contemporary open-plan living near Hyde Park and Gloucester Road shops.
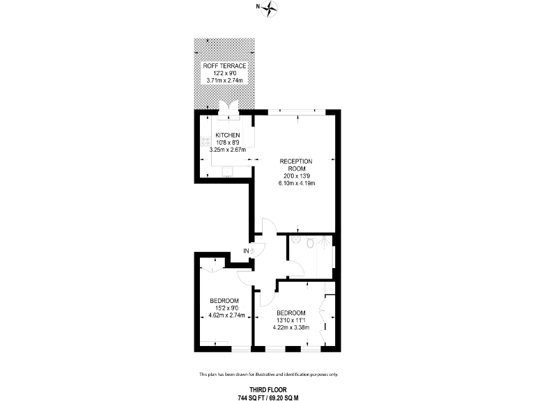
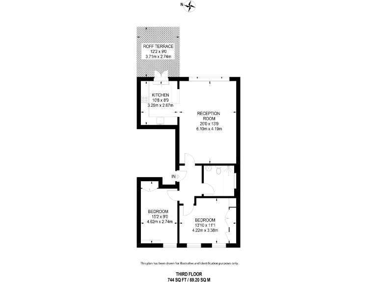
Third-floor two-bedroom flat with private roof terrace
Bright, well-presented two-bedroom flat on the third floor of a period building in South Kensington. The open-plan reception and integrated kitchen create a modern living space that flows onto a private roof terrace — ideal for entertaining or outdoor relaxation. Both bedrooms have fitted wardrobes and the accommodation is ready to move into with a stylish white-suite bathroom.
Practical positives include a very long lease (share of freehold), communal bicycle storage and fast broadband with excellent mobile signal — useful for commuters and home workers. The property sits in an affluent, inner-city area with easy access to Hyde Park, Gloucester Road amenities and excellent public transport links.
Note the property sits in a 1900–1929 solid-brick building with assumed no wall insulation, and heating is by mains gas boiler and radiators. Annual service charge is around £2,700. There is a single bathroom and the flat is on the third floor, which may be relevant for buyers needing lift access or portable moving considerations.
Overall this is a smart, low-maintenance flat in a sought-after central location, offering turn-key living and strong rental or owner-occupier appeal, balanced by running costs and the practicalities of a third-floor apartment in an older building.
2 bedroom flat for sale in Grenville Place, South Kensington, London, SW7 — £1,150,000 • 2 bed • 1 bath • 782 ft²
2 bedroom flat for sale in Queens Gate, South Kensington, London, SW7 — £1,250,000 • 2 bed • 2 bath • 926 ft²
2 bedroom flat for sale in Earls Court Road, Earls Court, London, SW5 — £575,000 • 2 bed • 1 bath • 619 ft²
2 bedroom flat for sale in Ovington Court, Knightsbridge, London, SW3 — £1,650,000 • 2 bed • 2 bath • 1088 ft²
3 bedroom apartment for sale in Emperors Gate, London, SW7 — £1,400,000 • 3 bed • 2 bath • 1030 ft²
3 bedroom flat for sale in Courtfield Road, London, SW7 — £1,600,000 • 3 bed • 3 bath • 1490 ft²


















































































