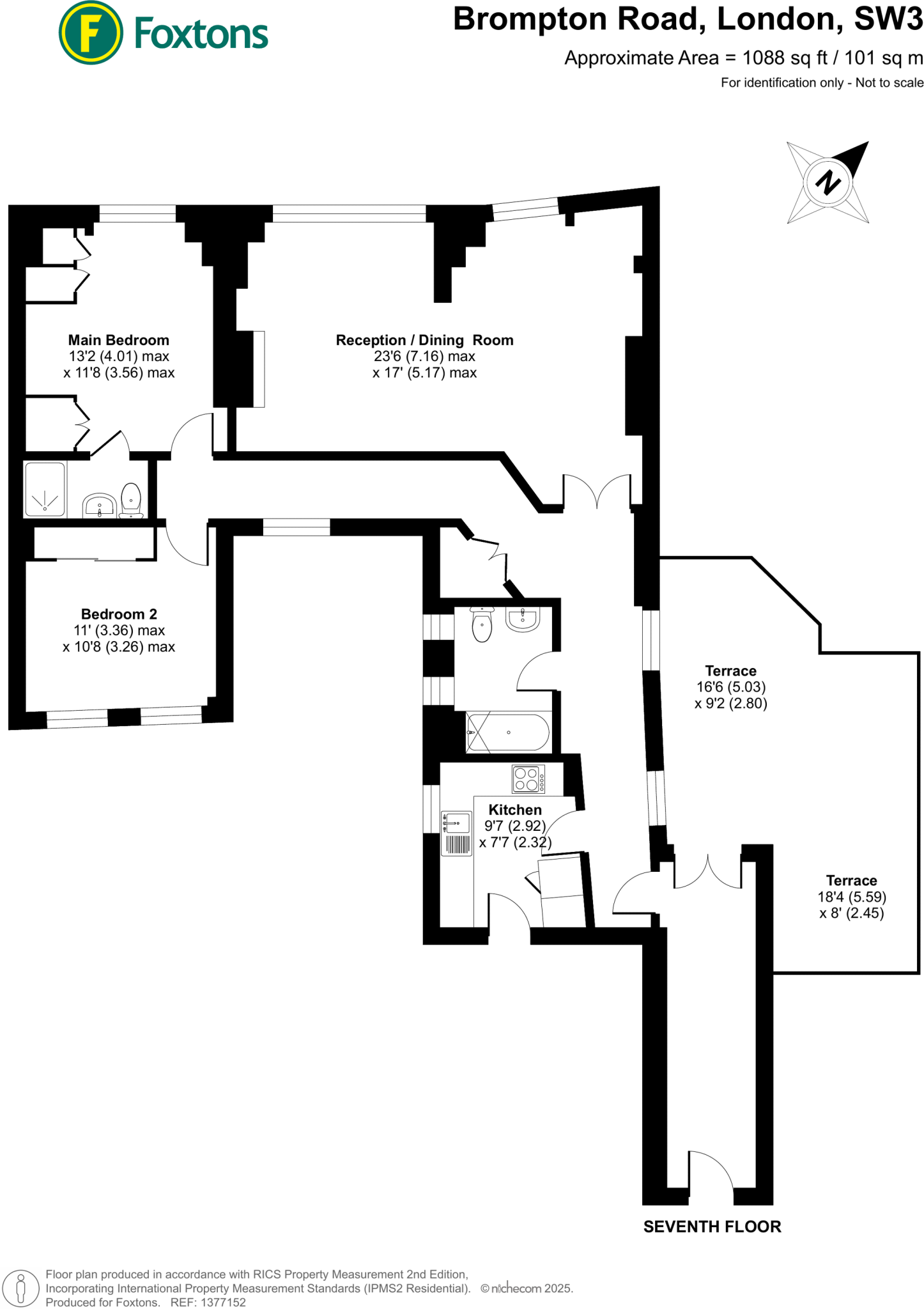
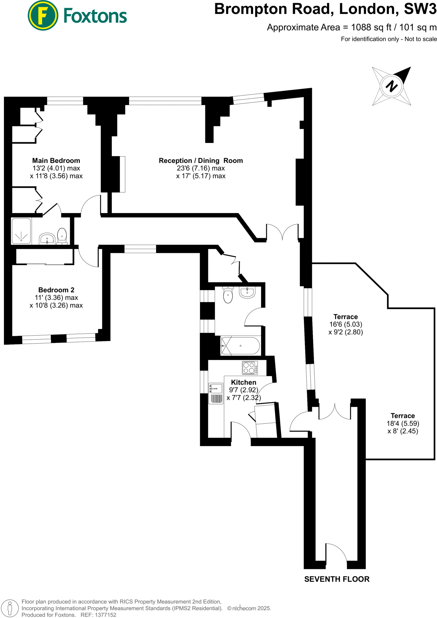
Spacious two-bedroom home with concierge and private outdoor space for city living.
Large 1,088 sq ft two-bedroom apartment with private terrace
Set on the seventh floor of a handsome early-20th-century building, this large two-bedroom apartment combines period character with contemporary comfort. The reception room is bright and roomy with space for dining, while a modern kitchen and two bathrooms support easy daily living. A private terrace provides outdoor space for relaxation and entertaining.
Practical features include secure concierge service, double glazing (install date unknown), mains gas heating and a long lease of 139 years. The apartment sits on Brompton Road close to high-end shops, restaurants and Knightsbridge and South Kensington tube stations, making it ideal for those who want an inner-city lifestyle with excellent connectivity.
Buyers should note material running costs and local context: the annual service charge is high (£9,994) and the immediate area records very high crime levels. The building’s solid brick construction likely lacks cavity insulation, so there may be heat-loss and potential retrofit costs. Overall, this is a substantial central London apartment with strong location benefits but notable ownership costs to consider.
2 bedroom flat for sale in Pont Street, London, SW1X — £2,325,000 • 2 bed • 2 bath • 1229 ft²
2 bedroom flat for sale in Grenville Place, South Kensington, London, SW7 — £1,150,000 • 2 bed • 1 bath • 782 ft²
3 bedroom flat for sale in Lancelot Place, London, SW7 — £7,500,000 • 3 bed • 3 bath • 2746 ft²
2 bedroom flat for sale in Ovington Court, SW3, Knightsbridge, London, SW3 — £1,750,000 • 2 bed • 2 bath • 819 ft²
2 bedroom flat for sale in Brompton Road, South Kensington, London, SW3 — £1,850,000 • 2 bed • 3 bath • 1067 ft²
2 bedroom flat for sale in Earls Court Road, Earls Court, London, SW5 — £575,000 • 2 bed • 1 bath • 619 ft²














































































































































