Victorian three-bed with garden room, driveway and scope to extend — near Horley station.
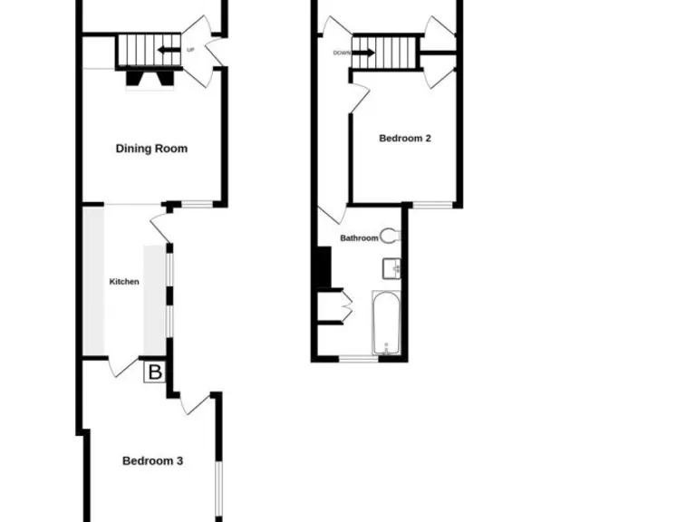
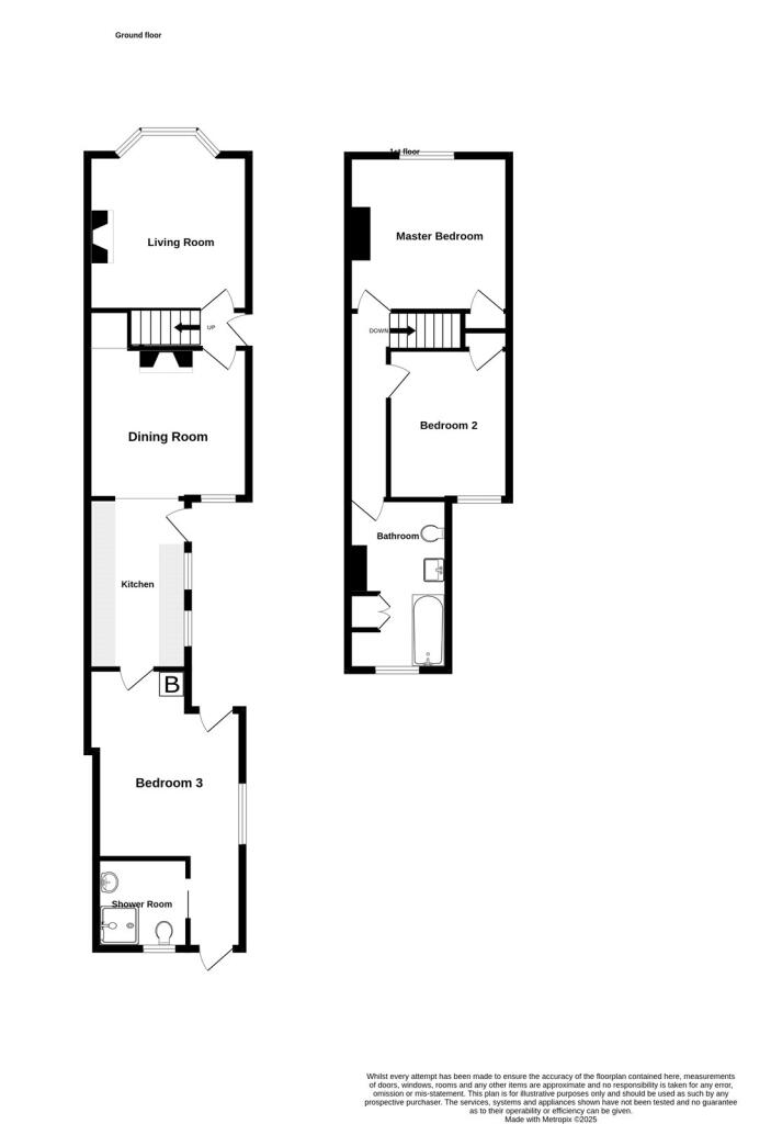
Three bedrooms with flexible ground-floor bedroom and shower room
Sun Star Cottage is a well-presented three-bedroom Victorian semi offering flexible living across two storeys and a rear extension. The bright living room with bay window, separate dining area and modern kitchen create comfortable family circulation, while a ground-floor bedroom with walk-in shower adds adaptable accommodation for guests or home working.
Outside, the landscaped rear garden is low-maintenance and includes a dedicated garden/office room suitable for entertaining or remote work. Driveway parking to the front and double glazing fitted after 2002 add everyday convenience; mains gas heating with boiler and radiators provides efficient warmth.
Practical considerations: the property dates from the early 20th century and appears to have original cavity walls without added insulation — there is clear potential (and cost) to improve thermal performance. The area is flagged as medium flood risk and records higher local crime levels; buyers should check insurance and security implications. Many neighbouring houses have loft conversions, so further accommodation could be created subject to consent.
This home suits families seeking period character with modern updates and scope to personalise. It is freehold, offers straightforward access to Horley town and station, and sits within reach of several well-rated schools, making it a sensible candidate for those prioritising location and practical living space.
2 bedroom detached house for sale in Lumley Road, Horley, Surrey, RH6 — £410,000 • 2 bed • 1 bath • 807 ft²
3 bedroom end of terrace house for sale in Brookside, Reigate Road, Hookwood, RH6 — £475,000 • 3 bed • 2 bath • 781 ft²
2 bedroom detached house for sale in Hookwood Cottages, Reigate Road, Horley, RH6 — £450,000 • 2 bed • 1 bath • 834 ft²
2 bedroom semi-detached house for sale in Ladbroke Road, Horley, Surrey, RH6 — £425,000 • 2 bed • 1 bath • 977 ft²
2 bedroom semi-detached house for sale in Kerves Lane, Horsham, West Sussex, RH13 6EX., RH13 — £425,000 • 2 bed • 1 bath • 490 ft²
3 bedroom semi-detached house for sale in Crawley Road, Horsham, West Sussex., RH12 — £500,000 • 3 bed • 1 bath • 957 ft²














































































