Detached two-bedroom cottage with large south-west garden and ample parking, minutes from Horley.
South-west facing private rear garden with patio ideal for entertaining
Driveway parking for several vehicles; impressive front garden and privacy hedging
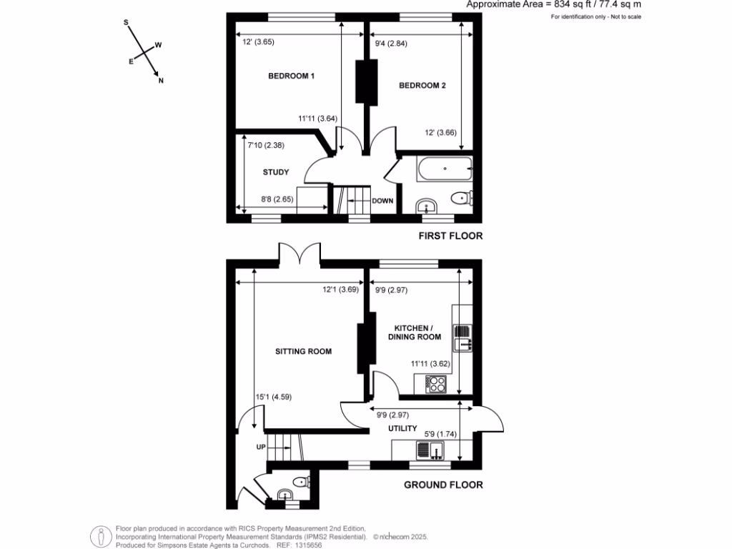
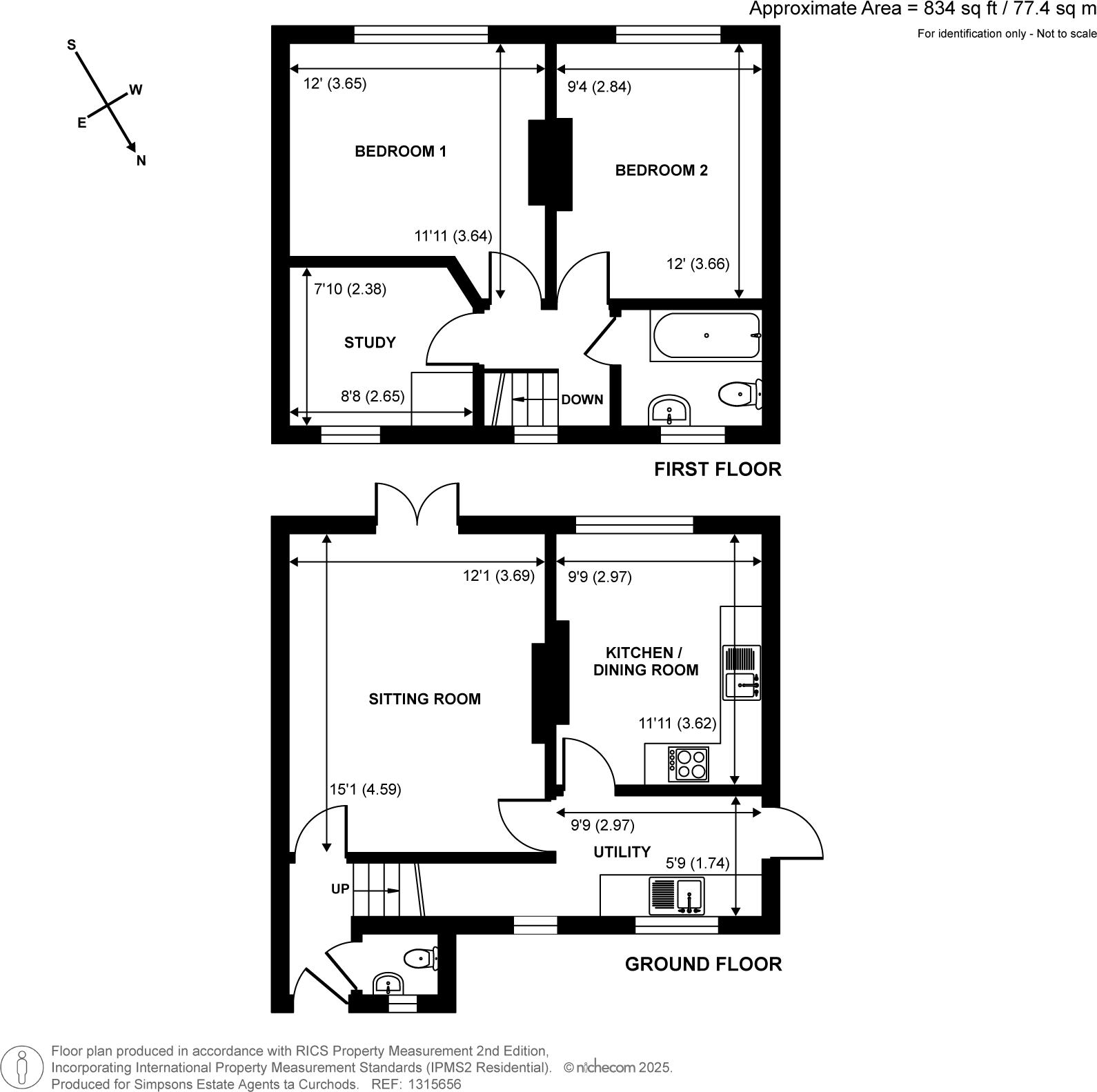
Living room with patio doors; kitchen/diner plus separate utility room
Two double bedrooms, plus box room/study and modern bathroom
End of chain and offered with vacant possession
Cavity walls have no added insulation; energy upgrades recommended
Tenure unknown — buyers should verify ownership details
Local crime levels higher than average; consider security measures
Set back behind hedging with a wide driveway, this detached two-bedroom cottage offers practical family living within easy reach of Horley town centre and Gatwick. The ground floor provides a living room with patio doors onto a south-west facing garden, a kitchen/diner and a separate utility — useful for busy households. Upstairs are two double bedrooms, a box room/study and a modern family bathroom. The house is offered with vacant possession and benefits from off-street parking for several vehicles.
The large south-west garden and paved patio make the house appealing for outdoor entertaining and family play; the rear is fenced and private with no immediate properties overlooking. The property’s mid-20th-century construction includes double glazing and gas central heating to radiators, while the cavity walls are recorded as having no added insulation and may benefit from upgrading to improve comfort and running costs. Broadband and mobile signals are average in this location.
Practical considerations: crime levels in the area are above average, tenure is unknown and should be confirmed, and the property is of average overall size at about 834 sq ft. For buyers after a ready-to-live-in detached home with garden space and parking close to local schools and transport links, this house represents a sensible, end-of-chain opportunity. Some targeted improvements (wall insulation, energy efficiency upgrades) would add immediate value and reduce future bills.
2 bedroom detached house for sale in Lumley Road, Horley, Surrey, RH6 — £410,000 • 2 bed • 1 bath • 807 ft²
3 bedroom detached house for sale in Kingsley Close, Horley, Surrey, RH6 — £725,000 • 3 bed • 2 bath • 1633 ft²
3 bedroom detached house for sale in Limes Avenue, Horley, Surrey, RH6 — £625,000 • 3 bed • 1 bath • 1430 ft²
4 bedroom detached house for sale in Povey Cross Road, Horley, Surrey, RH6 — £600,000 • 4 bed • 2 bath • 1141 ft²
4 bedroom detached house for sale in Mill Lane, Horley, Surrey, RH6 — £750,000 • 4 bed • 3 bath • 2179 ft²
4 bedroom detached house for sale in Horley , RH6 , RH6 — £650,000 • 4 bed • 2 bath • 1395 ft²














































































