GU21 4DZ - 4 bedroom detached house for sale in Foxgrove Drive, Horsel…

View on Property Piper

4 bedroom detached house for sale in Foxgrove Drive, Horsell, Surrey, GU21

Summary - SQUIRRELS LEAP, 1 FOXGROVE DRIVE, HORSELL GU21 4DZ

4 bed 2 bath Detached

**Standout Features:**
- Detached family home built in the 1960s
- Four spacious bedrooms, including a principal suite with en-suite and dressing area
- Expansive garden with a sunny aspect—ideal for outdoor entertaining
- Generous driveway and double garage, offering ample parking and storage
- Set on a large plot in an affluent area, near Horsell Common
- Chain-free sale, ready for immediate occupancy
- Strong renovation potential for customization or extension (subject to planning permission)
- Proximity to excellent schools

**Summary Description:**
This remarkable four-bedroom detached home, nestled in a tranquil setting near Horsell Common, offers a perfect opportunity for families or investors seeking a property filled with potential. The spacious layout includes a dual-aspect living room with a fireplace, a formal dining area, and a functional kitchen leading to a utility room and double garage. The upstairs features four well-sized bedrooms, providing plenty of space for a growing family.

Set on a generous plot, the large garden invites endless possibilities for outdoor enjoyment and future landscaping projects. The home requires some renovation, allowing you to infuse your personal style, making it a true canvas for your dream living space. Enjoy the benefits of living close to top-rated schools and nature trails, all while being just a stone's throw away from Woking’s amenities and mainline station. Viewings are highly recommended—discover the charm and potential this property has to offer before it’s gone!

Property Details

Brochure Descriptions

Image Descriptions

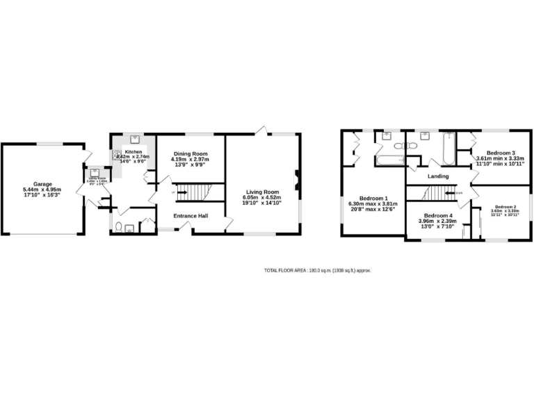
Floorplan Description

Rooms

Textual Property Features

Detected Visual Features

EPC Details

Nearby Schools

Nearest Bars And Restaurants

,,,,}

Nearest General Shops

,,}

Nearest Grocery shops

,,}

Nearest Supermarkets

,,}

Nearest Religious buildings

,,}

Nearest Medical buildings

,,,}

Nearest Airports

,}

Nearest Leisure Facilities

,,,,}

Nearest Tourist attractions

,,}

Nearest Train stations

,,,,}

Nearest Bus stations and stops

,,,,}

Nearest Hotels

,,}

Tags

Local Market Stats

AirBnB Data

Similar Properties

Meta

High Res Images

Compatible Images

Low res Images

Thumbnails

Raw Images

High Res Floorplan Images

Compatible Floorplan Images

Low res Floorplan Images

FloorplanImages Thumbnail

Raw Floorplan Images