Bright sustainable four-bedroom house with garage, garden and strong travel links.
Four double bedrooms including second-floor principal with en-suite
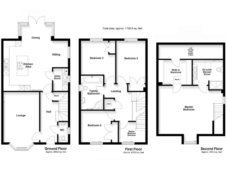
This three-storey new-build (2023) detached house offers flexible living across 1,736 sq ft, designed for family life with modern energy-saving features. The ground floor opens to an open-plan kitchen/dining/living area with central island and French doors to the rear garden, plus a useful utility room and cloakroom. Upstairs are three double bedrooms with built-in wardrobes and a family bathroom; the second-floor principal suite includes an en-suite and walk-in wardrobe.
Practical extras include a driveway, single garage, EV charging point and rooftop solar panels, contributing to lower running costs. Broadband is fast and the property sits in a very affluent, low-flood-risk hamlet with good road links for commuting. The build quality appears high with gas central heating, modern finishes and decent thermal performance.
Considerations: the front garden is modest and the house occupies a relatively compact street footprint despite generous internal floors; outdoor space is more substantial to the rear. Mobile signal is average and some nearby schools have mixed Ofsted outcomes, so buyers with specific school requirements should check catchment details. Council tax and some local service details are not provided.
Overall this freehold detached home suits families seeking a low-maintenance, energy-efficient house in a quiet village setting, with scope to personalise interiors over time.
4 bedroom detached house for sale in Lime Gardens,
Sutton Bonington,
LE12 5FD, LE12 — £559,950 • 4 bed • 1 bath • 1268 ft²
4 bedroom detached house for sale in Kiln Drive, Lime Gardens , Sutton Bonington, LE12 — £609,950 • 4 bed • 2 bath • 1702 ft²
4 bedroom detached house for sale in William Railton Road, Garendon Park, Loughborough, LE12 — £399,950 • 4 bed • 2 bath • 1205 ft²
4 bedroom detached house for sale in Kiln Drive, Sutton Bonington, LE12 — £509,950 • 4 bed • 2 bath • 1451 ft²
4 bedroom detached house for sale in Derby Road,
Loughborough,
LE12 5BT, LE12 — £429,995 • 4 bed • 1 bath • 430 ft²
5 bedroom detached house for sale in Sowters Lane,
Off Melton Road,
Burton on the Wolds,
Leicestershire,
LE12 5TS, LE12 — £719,950 • 5 bed • 4 bath • 2167 ft²


































































































































