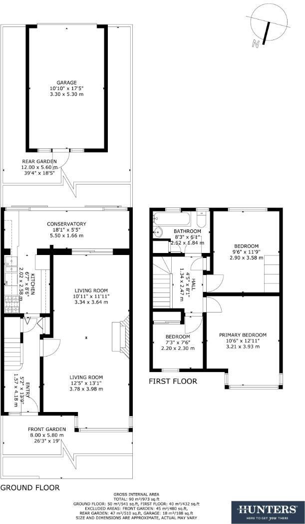
Chain-free three-bed terraced family home with conservatory and large garage.
Three bedrooms with separate living and dining areas
Conservatory adds light and extra flexible living space
Large rear garage — parking and substantial storage
Front and rear gardens — good outdoor space for families
Chain-free sale for a potentially quicker purchase
Single bathroom only — may suit one-bathroom households
Constructed 1930s; solid brick walls, likely no cavity insulation
Interior shows dated finishes; updating will be needed to modernise
This mid-terrace three-bedroom home on Coombewood Drive offers practical family living across about 973 sq ft. A through lounge flows to a conservatory, giving extra light and versatile space for dining or play. The fenced front and rear gardens and a large rear garage deliver useful outdoor amenity and substantial storage or parking for the area.
The layout suits growing families: three bedrooms and a first-floor bathroom keep the sleeping zone separate from daytime living. The property is chain-free, so completion can be straightforward. Local schools include several highly rated primaries and secondaries, and the nearby high road provides regular bus links and everyday shops.
Buyers should note the house dates from the 1930s and retains period character but shows signs of older finishes and dated decor. Walls are solid brick with no known cavity insulation (assumed), so improving thermal performance and modernising services could be advisable and will add value. There is only one bathroom for three bedrooms, which may influence family routines.
Overall this is a practical family home with good outdoor space and a large garage, offering scope to update over time. It will suit buyers seeking a liveable property to personalise and improve rather than a fully refurbished turnkey home.
3 bedroom terraced house for sale in Coombewood Drive, Chadwell Heath, RM6 — £500,000 • 3 bed • 1 bath • 1026 ft²
3 bedroom end of terrace house for sale in Havering Gardens, Chadwell Heath, RM6 — £525,000 • 3 bed • 1 bath • 1051 ft²
3 bedroom semi-detached house for sale in Warren Terrace, Eastern Avenue West, Chadwell Heath, RM6 — £425,000 • 3 bed • 1 bath • 985 ft²
3 bedroom end of terrace house for sale in Belfairs Drive, Romford, RM6 — £525,000 • 3 bed • 1 bath • 954 ft²
3 bedroom terraced house for sale in Mill Lane, Chadwell Heath, RM6 — £425,000 • 3 bed • 1 bath • 872 ft²
3 bedroom terraced house for sale in High Road, Chadwell Heath, RM6 — £450,000 • 3 bed • 1 bath • 990 ft²






































































































