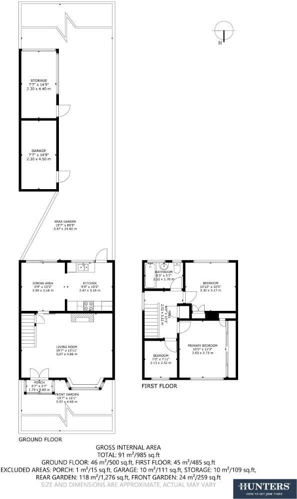
Chain-free 3-bed semi with garage, long garden and strong modernisation potential.
Garage and shared driveway providing off-street parking and storage
Long rear garden approximately 80ft — good outdoor space
Chain-free freehold; suitable for first-time buyers or buy-to-let
Three bedrooms but only one bathroom; could be limiting for families
Mid-20th-century fittings; property feels dated and needs modernisation
Solid brick walls likely uninsulated; consider energy-efficiency upgrades
Good transport links (A12) and excellent mobile/fast broadband
Local crime above average — factor into area suitability decisions
Welcome to this three-bedroom semi-detached home on Warren Terrace, offered chain-free and ready for new owners to personalise. The property is freehold with a garage, off-street parking and a long rear garden — features that are rare at this price point and useful for families or first-time buyers seeking outdoor space and storage.
The ground floor provides a large reception room that benefits from a bay window and natural light, while the compact kitchen and separate dining room keep daily living practical. Upstairs are three bedrooms and a single family bathroom; the room sizes suit a couple starting a family or buyers wanting rental potential.
The house has been well maintained but retains mid-20th-century fittings and some dated finishes. Walls are solid brick with assumed no cavity insulation, so upgrading insulation, updating the bathroom or modernising the kitchen would add comfort and value. Buyers should note local crime levels are above average and the property sits in an urban cultural mix area.
Practical positives include mains gas heating with boiler and radiators, excellent mobile signal and fast broadband, good motoring links via the A12, and nearby schools rated Outstanding and Good. For buyers willing to invest modestly in modernisation, this home offers strong long-term potential and straightforward access to transport and local amenities.
3 bedroom semi-detached house for sale in Whalebone Grove, Chadwell Heath, RM6 — £595,000 • 3 bed • 1 bath • 1874 ft²
3 bedroom terraced house for sale in Coombewood Drive, Chadwell Heath, RM6 — £450,000 • 3 bed • 1 bath • 973 ft²
3 bedroom end of terrace house for sale in Havering Gardens, Chadwell Heath, RM6 — £525,000 • 3 bed • 1 bath • 1051 ft²
3 bedroom end of terrace house for sale in Belfairs Drive, Romford, RM6 — £525,000 • 3 bed • 1 bath • 954 ft²
5 bedroom terraced house for sale in East Road, Chadwell Heath, Romford, RM6 — £550,000 • 5 bed • 3 bath • 1580 ft²
5 bedroom end of terrace house for sale in Havering Gardens, Romford, RM6 — £625,000 • 5 bed • 2 bath • 1355 ft²














































































































































