Ready-planned site for a compact modern new build in a quiet village setting.
Full planning permission granted (Ref E/39400) for replacement dwelling
Freehold plot in village location with decent plot size
Planning granted 18/12/2019; plans available to view
Services available but require connection charges and buyer enquiries
Fast broadband and excellent mobile signal on site
Low local crime; nearby leisure, school and golf course
Area classified as very deprived — may affect resale demand
Planning address discrepancy: planning refers to 76, site listed as 84A
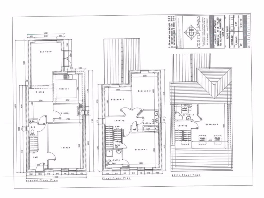
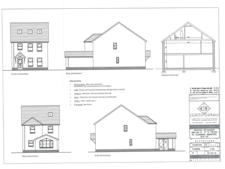
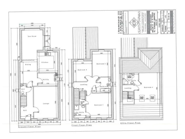
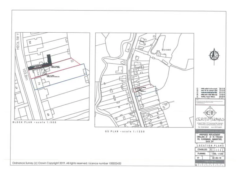
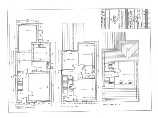
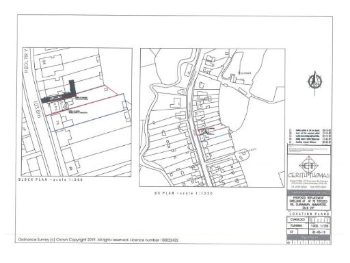
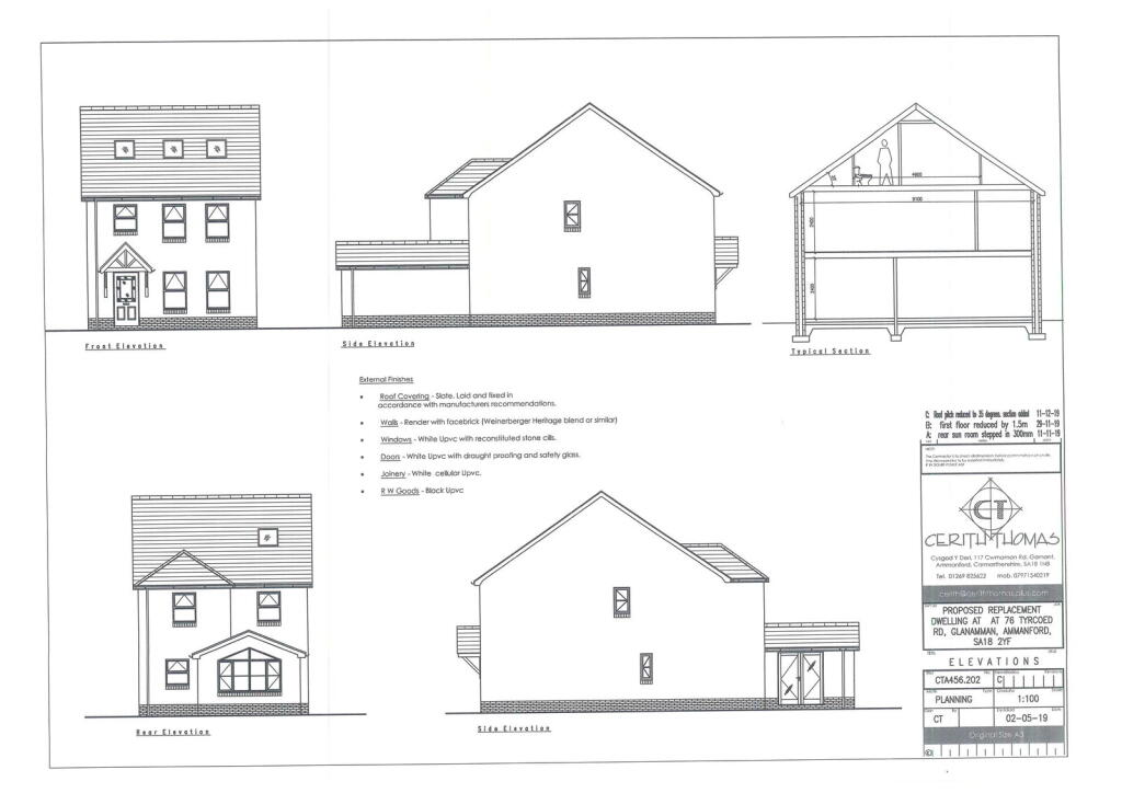
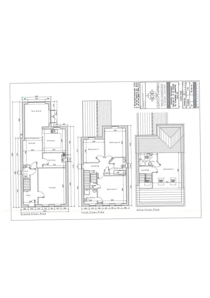
A freehold plot with full planning permission (Ref E/39400) for a replacement residential dwelling in Glanamman. Permission was granted on 18/12/2019 for a modest one-bedroom scheme; plans are available for review. Services are available but will require connection charges — buyers should obtain quotes for utility works.
The site sits in a quiet village setting with riverside walks, cycle paths, recreational grounds and nearby primary school and an 18-hole golf course. Broadband speeds are reported fast and mobile signal is excellent, while local crime levels are low. The plot size is described as decent and the proposed design is a modern, energy-efficient build with UPVC windows and slate roof.
Important practical points: the surrounding area is classified as very deprived, which may affect resale values and local investment; the settlement is effectively hamlet/isolated rather than a busy urban location. There is a discrepancy in the address/planning text to note — planning refers to a replacement dwelling at 76 Tirycoed Road while the site is listed as 84A Tirycoed Road. Prospective purchasers should verify boundary, title details and any connection costs before exchange.
At an asking price of £50,000 this plot offers development potential for an individual builder or small investor seeking a straightforward new-build opportunity in a rural village setting. The simple one-bed scheme suits downsizers, single homeowners or rental use, but factor in local market conditions and service connection costs.
Land for sale in Heol Cwmaman, Glanamman, Ammanford, SA18 — £33,000 • 1 bed • 1 bath
Plot for sale in Plot opposite 170 Cwmgarw Road, Upper Brynamman, Ammanford, SA18 — £60,000 • 1 bed • 1 bath
Plot for sale in Penyrallt, Garnant, Ammanford, SA18 — £110,000 • 1 bed • 1 bath
Land for sale in Llwyncelyn Road, Glanamman, Ammanford, Carmarthenshire, SA18 — £65,000 • 1 bed • 1 bath
Land for sale in Garbett Place, Crynant, Neath, SA10 — £90,000 • 1 bed • 1 bath
Land for sale in Llwyncelyn Road, Glanamman, Ammanford, Carmarthenshire, SA18 — £65,000 • 1 bed • 1 bath














