Bright, newly renovated one-bedroom flat near Wandsworth Common — ideal for first-time buyers or investors.
Newly refurbished one-bedroom flat with high-quality finishes
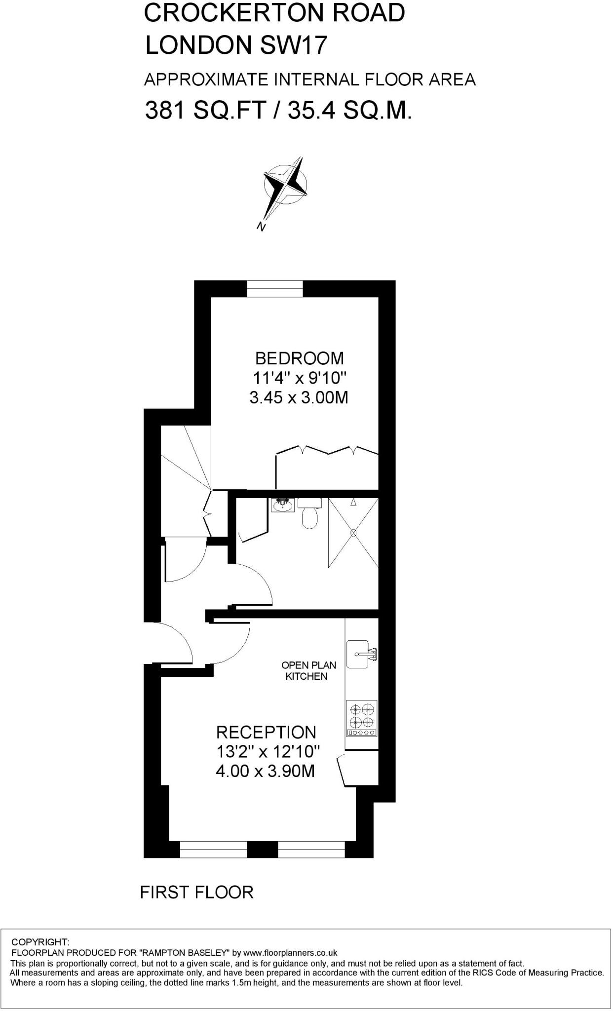
Open-plan reception/kitchen with hardwood floors and integrated appliances
Double bedroom with built-in wardrobes and garden-facing aspect
Compact layout — approximately 381 sq ft, best for single/couple
Long lease: 169 years remaining (leasehold)
Mains gas boiler and radiators; good mobile and broadband speeds
Original solid brick walls likely uninsulated — possible upgrade need
Council tax band not specified; average local crime levels
Finished to a high standard, this newly refurbished one-bedroom flat offers a bright, well-proportioned open-plan reception and kitchen in an attractive Victorian mid-terrace. Hardwood floors, shaker-style units, stone composite worktops and integrated appliances create a modern, low-maintenance living space suited to a single buyer or couple.
The double bedroom sits to the rear with fitted wardrobes and pleasant garden-facing views; the shower room is contemporary with an oversized glass-screen shower. The flat benefits from gas central heating via boiler and radiators and a long lease of 169 years, providing security for buyers and investors alike.
At roughly 381 sq ft the property is compact and efficient — good for first-time buyers, commuters and buy-to-let investors targeting the SW17 market. It’s a short walk to Wandsworth Common and local shops on Bellevue Road, with Tooting Bec Underground around ten minutes away for direct City access.
Buyers should note the apartment’s small overall size and that the building’s original solid brick walls are likely uninsulated, which may present an opportunity for future thermal or acoustic improvements. Council tax band is not specified. Crime levels are average for the area; broadband and mobile signal are strong.
1 bedroom apartment for sale in Trinity Road, SW18 — £475,000 • 1 bed • 1 bath • 554 ft²
1 bedroom flat for sale in Swanage Road, Wandsworth, London, SW18 — £350,000 • 1 bed • 1 bath • 541 ft²
1 bedroom flat for sale in Rectory Lane, Furzedown, London, SW17 — £325,000 • 1 bed • 1 bath • 344 ft²
2 bedroom maisonette for sale in Boundaries Road, SW12 — £750,000 • 2 bed • 1 bath • 792 ft²
1 bedroom apartment for sale in Molyneux Drive, London, SW17 — £275,000 • 1 bed • 1 bath • 484 ft²
1 bedroom apartment for sale in Longley Road, London, SW17 — £315,000 • 1 bed • 1 bath • 377 ft²


























