Bright one-bedroom flat with high ceilings and communal southwest garden.
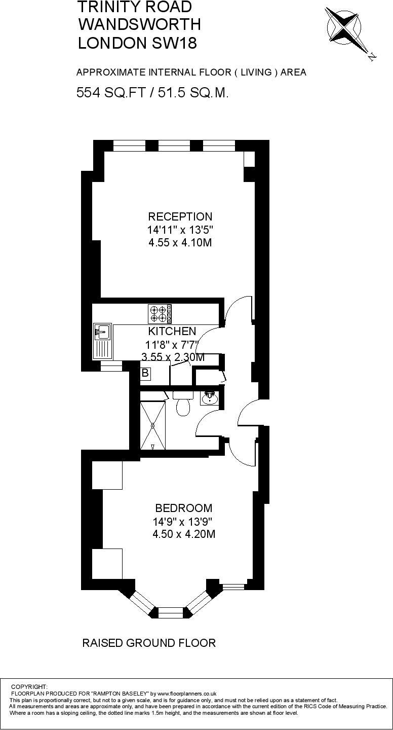
Approximately 554 sq ft of well-proportioned accommodation
Set within an imposing double-fronted Victorian terrace, this raised ground-floor one-bedroom flat offers bright, well-proportioned living across about 554 sq ft. High ceilings, original sash-style bay windows and timber floors create an airy reception room that opens visually to mature, south‑west facing communal gardens — a rare outdoor aspect so close to Wandsworth Common.
The accommodation has been newly refreshed throughout with a contemporary kitchen and a modern shower room, making it easy to move in. Practical benefits include a very long lease (approximately 957 years) and share of freehold, plus off‑street parking available on a first‑come, first‑served basis.
Truthfully, this is a compact city flat best suited to a single buyer or couple rather than a growing family. Windows have secondary glazing and the building’s solid brick construction means there may be limited wall insulation. Parking is not allocated and garden use is communal, not private.
Located on Trinity Road, the flat sits within walking distance of Bellevue Road, Northcote Road and local stations (Wandsworth Common, Clapham Junction), making it a convenient base for commuters and professionals seeking an attractive period property with immediate move‑in condition.
1 bedroom apartment for sale in Trinity Road, SW18 — £425,000 • 1 bed • 1 bath • 475 ft²
1 bedroom flat for sale in Trinity Road, London, SW18 — £450,000 • 1 bed • 1 bath • 552 ft²
1 bedroom flat for sale in Swanage Road, Wandsworth, London, SW18 — £350,000 • 1 bed • 1 bath • 541 ft²
2 bedroom apartment for sale in Trinity Road, London, SW18 — £500,000 • 2 bed • 1 bath • 577 ft²
1 bedroom flat for sale in Earlsfield Road,
Wandsworth Common, SW18 — £400,000 • 1 bed • 1 bath • 570 ft²
1 bedroom flat for sale in Spencer Court House, Battersea, London, SW18 — £350,000 • 1 bed • 1 bath • 321 ft²


































