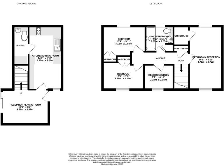
**Standout Features:**
- **Versatile Accommodation:** 3 bedrooms with potential for reconfiguration
- **Modern Kitchen & Bath:** Recently updated kitchen, cloakroom, and shower room
- **Outdoor Space:** Small private garden with low-maintenance design
- **Parking:** Driveway parking plus resident parking available
- **Location:** Close to schools, amenities, and South Hill Park
- **EPC Rating:** C (71), Council Tax Band: B
- **Leasehold:** 97 years remaining with a service charge of £300
This charming split-level, end-of-terrace maisonette presents an excellent opportunity for first-time buyers or savvy investors looking for versatility. The interior boasts a modern fitted kitchen/dining area, a bright living room, and a convenient cloakroom. Upstairs, you’ll find three well-proportioned bedrooms, including two doubles that can easily adapt to your needs, plus a fourth room perfect as a study or play area.
Enjoy the comfort of double glazing and gas heating throughout while relishing your small, gravel-laid garden, perfect for relaxed outdoor enjoyment. Additional benefits include a designated parking space and access to resident parking, making everyday life that much simpler. Situated in a desirable neighborhood, this property is just steps from highly-rated primary schools and local amenities, offering a family-friendly environment. Don’t miss out on the chance to own this practical and adaptable home—schedule your viewing today!
1 bedroom flat for sale in Liscombe, Bracknell, Berkshire, RG12 — £195,000 • 1 bed • 1 bath • 516 ft²
2 bedroom flat for sale in Loman Road, Mytchett, Surrey, GU16 — £300,000 • 2 bed • 1 bath • 722 ft²
1 bedroom terraced house for sale in Aldworth Close, Bracknell, Berkshire, RG12 — £225,000 • 1 bed • 1 bath • 353 ft²
1 bedroom maisonette for sale in Liscombe, Bracknell, Berkshire, RG12 — £250,000 • 1 bed • 1 bath • 534 ft²
1 bedroom maisonette for sale in Juniper, Bracknell, Berkshire, RG12 — £235,000 • 1 bed • 1 bath • 560 ft²
2 bedroom maisonette for sale in Jevington, Bracknell, RG12 — £250,000 • 2 bed • 1 bath • 480 ft²














































































