Characterful two‑bed conversion steps from Botanic Gardens and Byres Road..
Ground‑floor two‑bed conversion in handsome sandstone townhouse
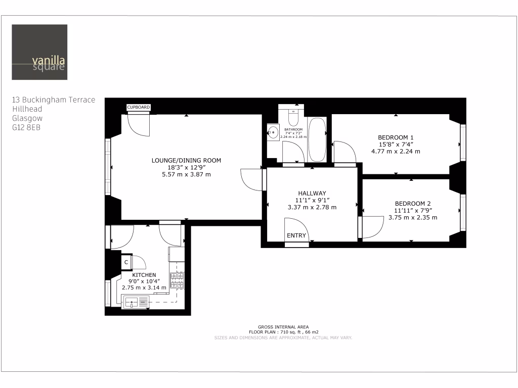
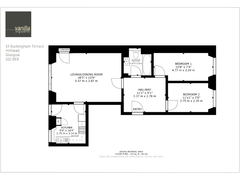
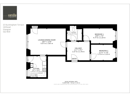
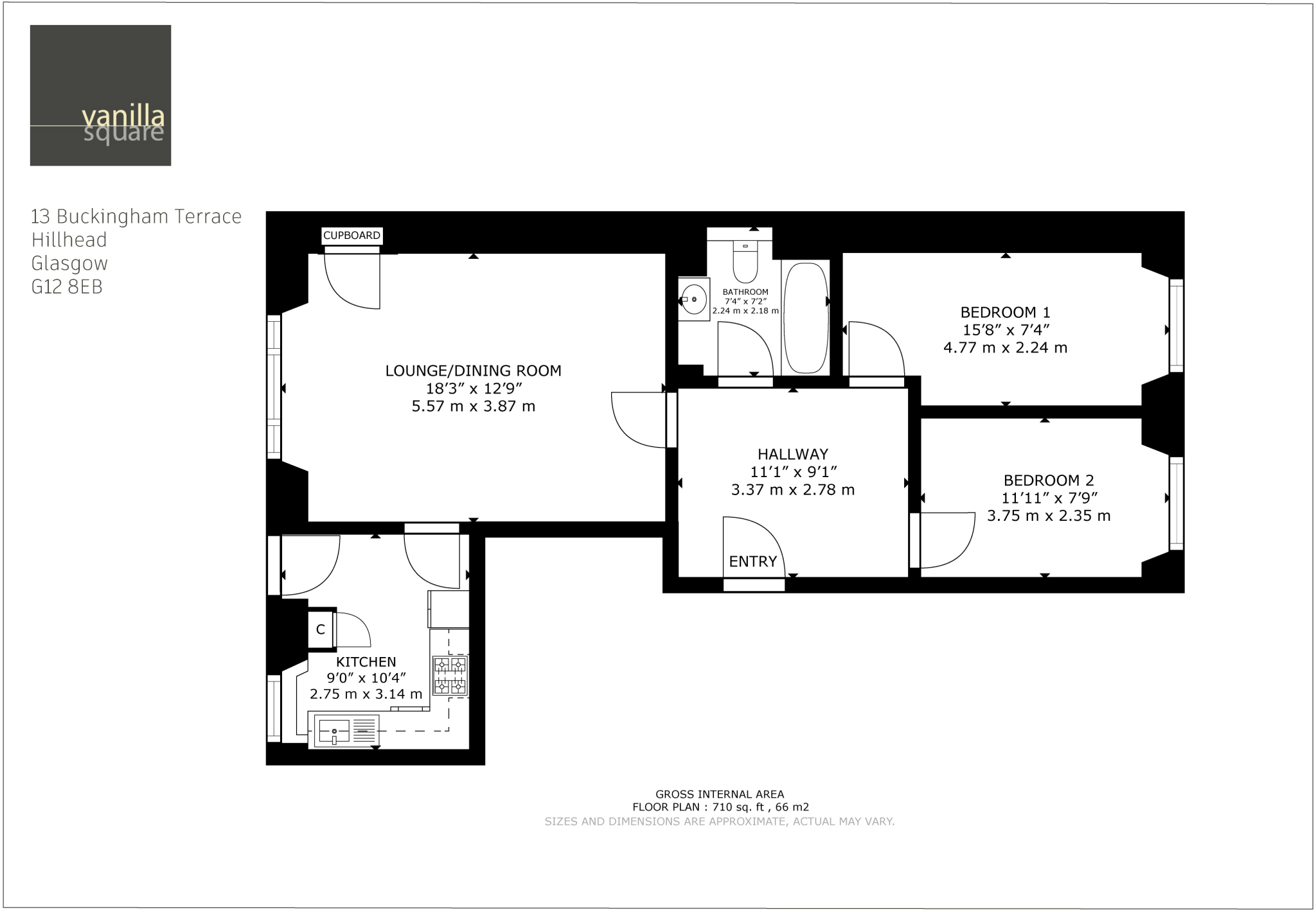
Set on a handsome tree‑lined terrace in the Botanics, this ground‑floor two‑bedroom conversion occupies circa 710 sq ft of well‑proportioned period space. High ceilings, decorative cornicing and large windows create bright rooms with the kind of character rarely found in modern builds. The lounge/dining room runs to the rear with leafy views over the communal garden, while the modern kitchen gives direct access to those outdoor spaces — a welcome extension for summer.
The flat is presented in walk‑in condition and benefits from practical updates including gas central heating with a new boiler installed around 2022, security entry and well kept communal areas managed by an appointed factor together with residents. Freehold tenure is a strong ownership position for a flat, and permit parking is available through Glasgow City Council for residents who need a car.
Considerations: there is a single bathroom for two double bedrooms and the energy performance is band D, so warmer‑home improvements could be considered. The immediate vicinity is described as a very deprived ward despite the desirable West End setting; buyers should check local services and any factor arrangements or communal maintenance costs. This home suits first‑time buyers or young professionals seeking a characterful, move‑in West End base with garden access and excellent local amenities and transport links.
2 bedroom apartment for sale in Hamilton Park Avenue, Botanics, Glasgow, G12 — £285,000 • 2 bed • 2 bath • 889 ft²
2 bedroom flat for sale in 1/1 31 Hamilton Drive, Botanics, G12 8DN, G12 — £339,000 • 2 bed • 1 bath • 990 ft²
2 bedroom apartment for sale in Holyrood Crescent, Glasgow, G20 — £275,000 • 2 bed • 1 bath • 803 ft²
2 bedroom flat for sale in 6 Botanic Crescent, North Kelvinside, G20 — £240,000 • 2 bed • 1 bath • 764 ft²
2 bedroom flat for sale in Flat 2 13 Ruskin Terrace, Botanics, G12 8DY, G12 — £249,000 • 2 bed • 1 bath • 829 ft²
2 bedroom flat for sale in Kirklee Quadrant, Kelvinside, G12 — £285,000 • 2 bed • 1 bath • 1421 ft²






























































































