Low-maintenance top-floor living with communal facilities and secure parking.
South-facing third-floor apartment with Juliet balcony
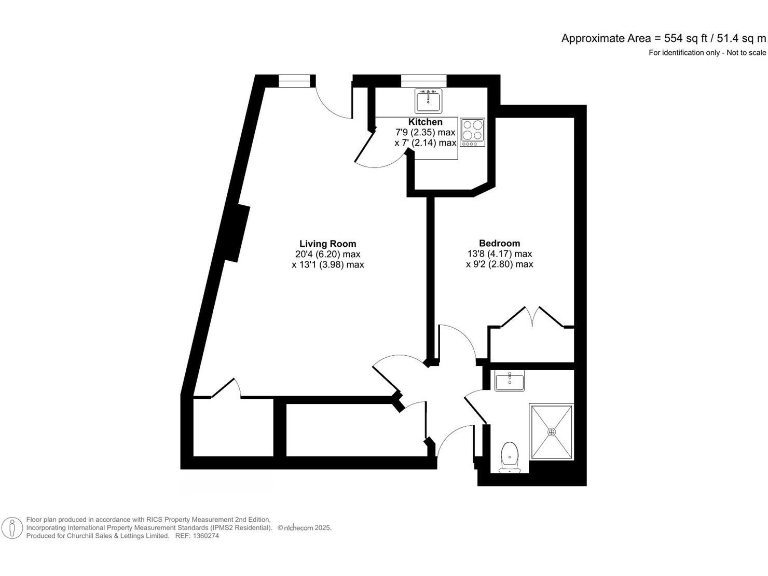
A bright one-bedroom third-floor apartment with a south-facing Juliet balcony, set within a purpose-built retirement development in Bishop’s Stortford. The open living room, fitted kitchen with integrated appliances and a double bedroom with built-in wardrobe deliver low-maintenance, comfortable accommodation of about 554 sq ft. Lift access and communal facilities make day-to-day living straightforward.
Nicholls Lodge is designed for independent over-55s who want convenience and community. On-site features include a lodge manager five days a week, owners’ lounge with regular social events, a Wellbeing Suite, communal laundry, communal gardens and resident parking. Guests can stay in the on-site Guest Suite, and owners have access to Guest Suites at Churchill Living developments nationally.
Practical running costs and tenure are important to note: the property is leasehold (about 116 years remaining), with an annual service charge of £3,218.86 and ground rent currently £718.40 (next review May 2029). Heating is provided via a community air-source system included in the service charge. The building was completed in 2015 and benefits from modern safety features including 24-hour Careline monitoring and an intruder alarm/door entry system.
This apartment will suit someone seeking a secure, low-maintenance base in a well-served market town with fast transport links. It offers peace of mind and social amenities but carries fixed communal costs and ground rent, which buyers should factor into long-term affordability.
1 bedroom retirement property for sale in Nicholls Lodge, Bishop's Stortford, CM23 — £290,000 • 1 bed • 1 bath • 497 ft²
2 bedroom apartment for sale in South Street, Bishop's Stortford, Hertfordshire, CM23 — £350,000 • 2 bed • 2 bath • 754 ft²
2 bedroom apartment for sale in South Street, Bishop's Stortford, Hertfordshire, CM23 — £355,000 • 2 bed • 1 bath • 821 ft²
2 bedroom apartment for sale in South Street, Bishop's Stortford, Hertfordshire, CM23 — £348,000 • 2 bed • 1 bath • 725 ft²
2 bedroom retirement property for sale in South Street, Bishop's Stortford, Hertfordshire, CM23 — £389,000 • 2 bed • 2 bath • 864 ft²
1 bedroom apartment for sale in South Street, Bishop's Stortford, Hertfordshire, CM23 — £195,000 • 1 bed • 1 bath • 488 ft²


























































