Large central apartment ideal for independent over‑60s seeking convenience and community.
One of the largest two-bedroom apartments in the development
Chain free sale; convenient for a quick move
Leasehold tenure — service charges and communal management apply
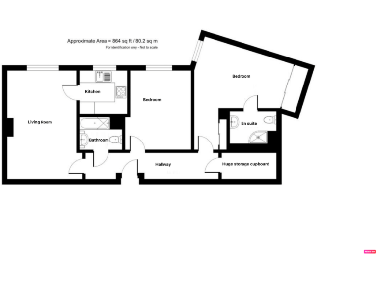
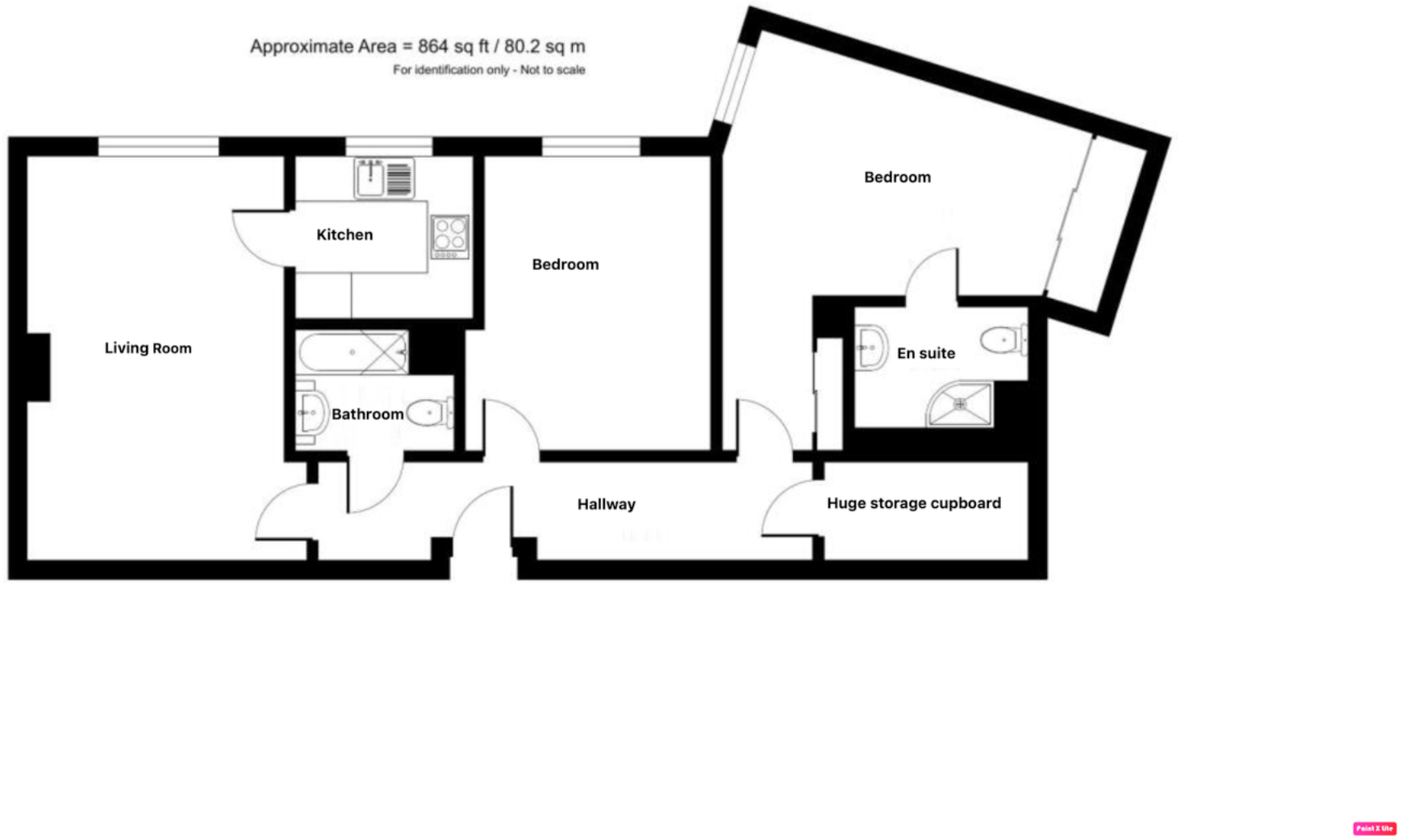
Two double bedrooms and two bathrooms, approx 864 sq ft
Lift access to all floors and gated resident parking
Lodge manager on site Mon–Fri 9am–5pm; 24‑hour careline available
Communal gardens, residents' lounge, guest suite and laundry room
Community heating scheme — communal arrangements rather than individual boilers
Set within Nicholls Lodge, this spacious two-bedroom retirement apartment offers generous rooms and direct access to town-centre amenities. At around 864 sq ft the home has two double bedrooms, two bathrooms and a large living room that benefits from good natural light and courtyard views. Lift access and off-street resident parking make daily life easier.
Residents have use of well-kept communal gardens, a lounge and on-site facilities including a hair and beauty suite, guest suite and laundry room. There is a lodge manager on site Monday to Friday 9am–5pm and a 24-hour careline / support service; the development is for over‑60s and has secure gated access.
Practical considerations include leasehold tenure and a community heating scheme; buyers should expect service charges and communal management, and note the lodge manager’s limited weekday hours. Chain free sale and excellent walking links to the town centre and mainline station (services to London and Cambridge) are strong conveniences for an active retired lifestyle.
2 bedroom apartment for sale in South Street, Bishop's Stortford, Hertfordshire, CM23 — £350,000 • 2 bed • 2 bath • 754 ft²
2 bedroom apartment for sale in South Street, Bishop's Stortford, Hertfordshire, CM23 — £348,000 • 2 bed • 1 bath • 725 ft²
2 bedroom apartment for sale in South Street, Bishop's Stortford, Hertfordshire, CM23 — £355,000 • 2 bed • 1 bath • 821 ft²
1 bedroom apartment for sale in South Street, Bishop's Stortford, Hertfordshire, CM23 — £265,000 • 1 bed • 1 bath • 498 ft²
1 bedroom retirement property for sale in Nicholls Lodge, Bishop's Stortford, CM23 — £265,000 • 1 bed • 1 bath • 497 ft²
1 bedroom apartment for sale in South Street, Bishop's Stortford, Hertfordshire, CM23 — £195,000 • 1 bed • 1 bath • 488 ft²










































































































































































































