Energy-efficient new build with garage and large private garden, ideal for family living.
Four bedrooms including principal with en suite
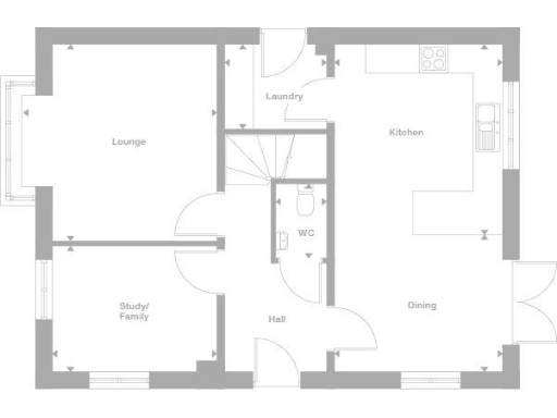
A modern four-bedroom detached new build arranged over two floors, this Beauwood design pairs an open-plan kitchen/diner with a separate lounge, study and a private rear garden. The property benefits from integrated PV panels and a single garage, offering lower running costs and secure parking for a family. The central feature staircase and bay-windowed lounge give the home a bright, traditional feel while the kitchen’s French doors connect the living space to the garden.
Accommodation suits family life: a principal bedroom with en suite, three further good-sized bedrooms and a main bathroom with separate shower. Practical extras include a dedicated laundry room, downstairs WC and a study that works as a home office or play space. The footprint is modest at c.988 sq ft, but the large plot and garden provide outdoor space rare for new developments.
Buyers should note material facts plainly: local broadband speeds are very slow, and the immediate area records above-average crime and higher deprivation than the national average. An annual service charge (around £120) applies for communal maintenance. Council tax banding is yet to be confirmed. Overall tenure for the plots listed is freehold.
This house will appeal to growing families seeking a low-maintenance, energy-efficient new home with convenient downstairs living and generous outdoor space. Investors may value the energy credentials and manageable service charge, but should weigh local connectivity and area statistics when assessing rental prospects.
4 bedroom detached house for sale in Bent House Lane,
Gilesgate,
Durham,
DH1 2EA, DH1 — £380,000 • 4 bed • 1 bath • 988 ft²
4 bedroom detached house for sale in Bent House Lane,
Gilesgate,
Durham,
DH1 2EA, DH1 — £340,000 • 4 bed • 1 bath • 987 ft²
4 bedroom detached house for sale in Bent House Lane,
Gilesgate,
Durham,
DH1 2EA, DH1 — £340,000 • 4 bed • 1 bath • 839 ft²
4 bedroom detached house for sale in Bent House Lane,
Gilesgate,
Durham,
DH1 2EA, DH1 — £330,000 • 4 bed • 1 bath • 905 ft²
4 bedroom detached house for sale in Bent House Lane,
Gilesgate,
Durham,
DH1 2EA, DH1 — £360,000 • 4 bed • 1 bath • 905 ft²
5 bedroom detached house for sale in Bent House Lane,
Gilesgate,
Durham,
DH1 2EA, DH1 — £460,000 • 5 bed • 1 bath • 1284 ft²














































































































































































































































