Compact, energy-efficient four-bedroom new-build with large garden and garage—suits families..
PV solar panels reduce running costs
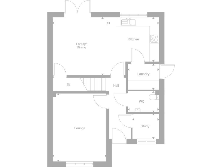
Open-plan kitchen/family/dining with French doors
Separate lounge with feature bay window
Study and separate laundry room downstairs
Principal bedroom with en-suite; family bathroom; ground-floor WC
Small internal size (approx. 839 sq ft) despite large plot
Very slow local broadband; above-average local crime
Annual service charge £120; new-build with garage
This modern four-bedroom detached new-build packs practical family living into a compact footprint. The layout centres on an open-plan kitchen/family/dining area with French doors to the rear garden, complemented by a separate lounge with feature bay window and a ground-floor study for home working.
Sustainability and day-to-day convenience are highlights: fitted PV panels reduce energy running costs, there's a separate laundry room and a single garage with off-street parking. The principal bedroom includes an en-suite and there is a family bathroom plus a ground-floor WC to serve the household.
Buyers should note the property’s limited internal size (approximately 839 sq ft) despite a very large plot, which may suit those wanting outdoor space more than extensive internal living area. Broadband speeds are very slow locally and the immediate area records above-average crime — both important practical considerations. An annual service charge of £120 applies.
Overall, this home will suit young or growing families seeking a low-maintenance new-build with outdoor space and energy-saving PVs. It also offers renovation or reconfiguration potential to better suit specific household needs, but budget and priorities should reflect the small internal floor area and local infrastructure drawbacks.
4 bedroom detached house for sale in Bent House Lane,
Gilesgate,
Durham,
DH1 2EA, DH1 — £380,000 • 4 bed • 1 bath • 988 ft²
4 bedroom detached house for sale in Bent House Lane,
Gilesgate,
Durham,
DH1 2EA, DH1 — £350,000 • 4 bed • 1 bath • 987 ft²
4 bedroom detached house for sale in Bent House Lane,
Gilesgate,
Durham,
DH1 2EA, DH1 — £360,000 • 4 bed • 1 bath • 988 ft²
4 bedroom detached house for sale in Bent House Lane,
Gilesgate,
Durham,
DH1 2EA, DH1 — £375,000 • 4 bed • 1 bath • 987 ft²
3 bedroom detached house for sale in Bent House Lane,
Gilesgate,
Durham,
DH1 2EA, DH1 — £265,000 • 3 bed • 1 bath • 618 ft²
4 bedroom detached house for sale in Bent House Lane,
Gilesgate,
Durham,
DH1 2EA, DH1 — £380,000 • 4 bed • 1 bath • 987 ft²






















































































