Light-filled period flat near stations and local amenities.
South-facing bright reception with high ceilings and large windows|Around 741–765 sqft (approx) of living space|Large master bedroom plus second bedroom/study|Separate fitted kitchen/diner and modern bathroom|Chain free sale for quicker completion|Leasehold — only 54 years remaining; lenders may refuse|Council tax band: expensive; budget accordingly|Victorian/Edwardian building with solid brick walls (likely no insulation)
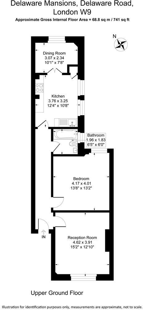
This bright two-bedroom mansion-block flat sits in a quiet, tree-lined stretch of Maida Vale, opposite the BBC Maida Vale Studios and within a short walk of Warwick Avenue and Maida Vale stations. High ceilings, large windows and period detailing give the principal rooms a generous, characterful feel; the reception room faces south and receives good natural light. The layout includes a large master bedroom, a second bedroom/study, separate fitted kitchen/diner and a modern bathroom.
The apartment is offered chain free and currently in good decorative order, so it will suit someone seeking a ready-to-move-in home with scope to personalise. The building is Victorian/Edwardian in character and sits in a very affluent, low-crime area with excellent local amenities, good broadband and easy access to parks, shops and well-regarded schools.
Important practical note: the property is leasehold with only 54 years remaining. That low lease term is a material drawback — many mortgage lenders will refuse lending unless the lease is extended first. Buyers should obtain specialist mortgage/leasehold advice and factor the time and cost of a lease extension into their plans. Council tax is high, and the building’s solid-brick construction likely means limited wall insulation without retrofit works.
Overall, this is a characterful, well-located flat that will appeal to buyers who value period proportions and a central Maida Vale location — particularly cash buyers or those prepared to arrange a lease extension before purchase.
2 bedroom apartment for sale in Delaware Road, London, W9 — £850,000 • 2 bed • 2 bath • 866 ft²
2 bedroom apartment for sale in Delaware Mansions, Delaware Road, Maida Vale, London, W9 — £925,000 • 2 bed • 1 bath • 932 ft²
2 bedroom apartment for sale in Delaware Road, London, W9 — £925,000 • 2 bed • 1 bath • 941 ft²
2 bedroom flat for sale in Delaware Road, London, W9 — £925,000 • 2 bed • 1 bath • 941 ft²
1 bedroom apartment for sale in Delaware Mansions, Delaware Road, Maida Vale, London, W9 — £699,950 • 1 bed • 1 bath • 728 ft²
3 bedroom flat for sale in Delaware Mansions, Delaware Road, Maida Vale W9 — £800,000 • 3 bed • 1 bath • 930 ft²






































