Bright, newly renovated one-bed in a sought-after Maida Vale mansion block.
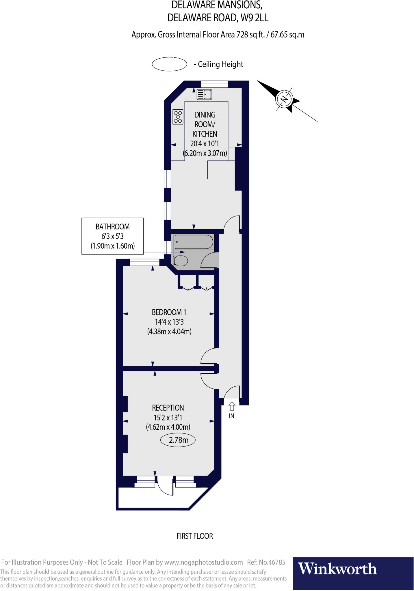
Approx. 728 sq ft — unusually large one-bedroom apartment
This bright, newly renovated one-bedroom apartment occupies the first floor of a sought-after mansion block in the heart of Maida Vale. At approximately 728 sq ft the layout feels generous: a south-facing reception with high ceilings and double doors to a balcony, a spacious kitchen/dining area and a large master bedroom. Modern finishes and plenty of natural light make it ready to move into.
Positioned on a quiet tree-lined street opposite the BBC studios, the flat benefits from excellent local amenities — boutique shops and cafes on Formosa Street, Paddington Recreation Ground and Warwick Avenue Underground are all within easy walking distance. Broadband and mobile signal are strong, and there is no flooding risk for the property.
Practical points to note: the flat is leasehold with a long lease (approx. 950 years) and a small ground rent of £100. Council tax is above average for the borough. The building is a period mansion block constructed before 1900, with solid brick walls (assumed uninsulated) — attractive character remains, but insulation upgrades may be limited by the construction and building regulations.
This apartment suits a first-time buyer or professional couple seeking a generous one-bed in a very affluent, well-connected neighbourhood. It offers immediate comfort and decorative readiness, plus scope to personalise while benefiting from a rare combination of period character and contemporary refurbishment.
1 bedroom apartment for sale in Delaware Mansions, Delaware Road, Maida Vale, London, W9 — £699,950 • 1 bed • 1 bath • 728 ft²
2 bedroom apartment for sale in Delaware Road, London, W9 — £925,000 • 2 bed • 1 bath • 941 ft²
2 bedroom apartment for sale in Delaware Mansions, Delaware Road, Maida Vale, London, W9 — £925,000 • 2 bed • 1 bath • 932 ft²
1 bedroom flat for sale in Wellesley Court, Maida Vale, Maida Vale, London, W9 — £360,000 • 1 bed • 1 bath • 450 ft²
2 bedroom apartment for sale in Wymering Road, London, W9 — £780,000 • 2 bed • 1 bath • 852 ft²
3 bedroom flat for sale in Delaware Mansions, Delaware Road, Maida Vale W9 — £800,000 • 3 bed • 1 bath • 930 ft²


























































