Bright family home with south garden and garage in commuter-friendly Crookston.
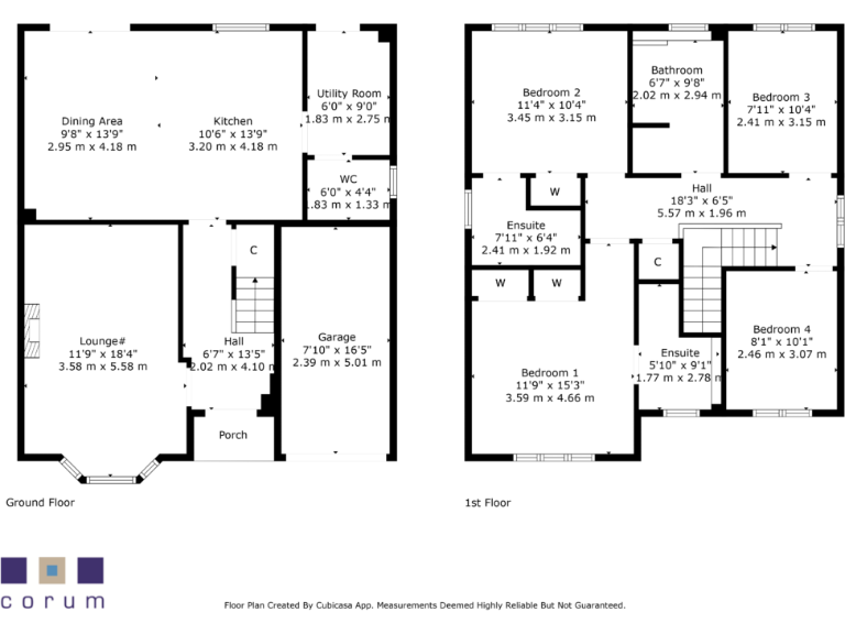
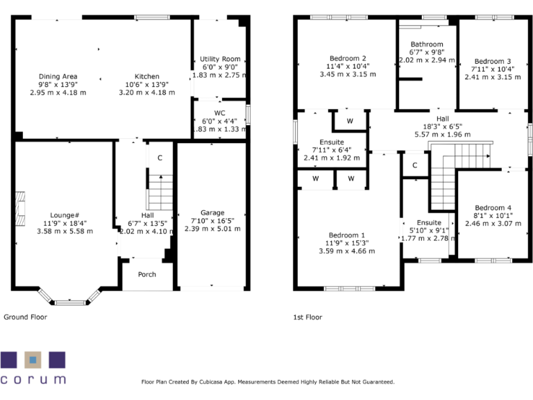
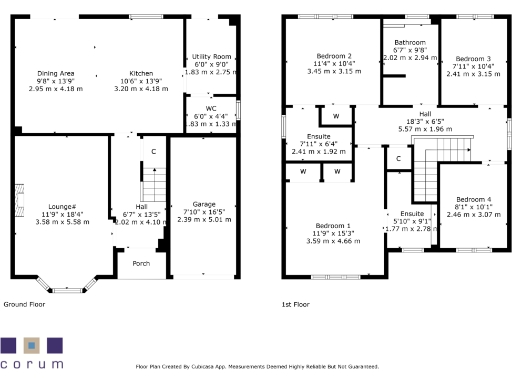
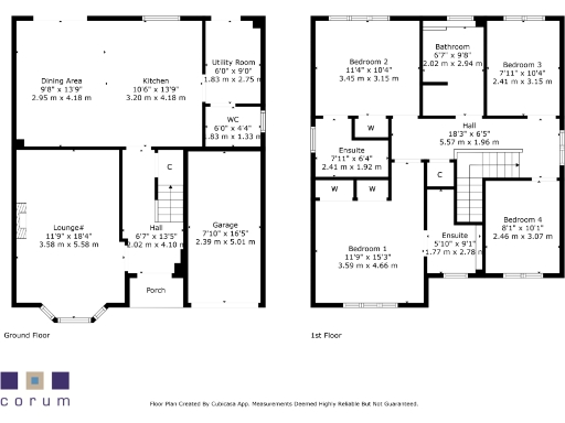
Four bedrooms, two en‑suites, plus separate family bathroom
Dining kitchen with French doors to southerly-facing garden
Driveway parking plus integral garage for secure off-street parking
Good decorative order throughout; EER Band C and home report available
Fast broadband and excellent mobile signal — good for home working
Open outlooks; situated on the outskirts of the Crookston development
Wider area classified as very deprived — consider community factors
Council tax described as expensive; factor into running costs
This modern four-bedroom detached villa offers generous, well-planned family accommodation across two floors, finished in contemporary tones and presented in good decorative order. The ground floor features a spacious lounge, a dining kitchen with French doors to southerly-facing gardens, a utility room with integrated appliances and a convenient WC. Upstairs are four well-proportioned bedrooms, two with en‑suite shower rooms, plus a main family bathroom.
Outdoors the property benefits from driveway parking, an integral garage and an enclosed, low‑maintenance south-facing garden with decking — ideal for family entertaining and sunny afternoons. The house sits on a pleasant plot with open outlooks and good kerb appeal in a residential Crookston development. EER Band C and a downloadable home report add transparency for buyers.
Location is practical for commuters and families: local shops, schools and parks are within walking distance, frequent public transport links serve the city centre, and the nearby M77 gives easy road access. Broadband speeds are fast and mobile signal is excellent, useful for home working and streaming.
Notable considerations: the wider area is classified as very deprived and council tax is described as expensive, which may affect running costs and resale perceptions. Overall this is a roomy, modern family home in good condition that suits buyers seeking space, convenience and a southerly garden in a suburban setting.
4 bedroom detached villa for sale in 16 Nissen Place, Crookston, G53 7SQ, G53 — £309,000 • 4 bed • 3 bath • 1334 ft²
4 bedroom detached villa for sale in 98a Cortmalaw Crescent, Robroyston, G33 1TB, G33 — £399,000 • 4 bed • 3 bath • 1668 ft²
4 bedroom detached villa for sale in 5 Langlook Place, Crookston, G53 7NS, G53 — £340,000 • 4 bed • 3 bath • 1463 ft²
4 bedroom detached villa for sale in Raeswood Gate, Crookston, G53 — £365,000 • 4 bed • 2 bath • 1389 ft²
3 bedroom detached villa for sale in Levernbridge Road, Glasgow, G53 — £269,000 • 3 bed • 2 bath • 1284 ft²
4 bedroom detached villa for sale in Leck Wynd, Robroyston, G33 1GS, G33 — £375,000 • 4 bed • 3 bath • 1176 ft²


















































































































































































































































