Energy-efficient detached house on a generous plot near village amenities.
- 10 kW solar system and ground source heat pump, high B EPC rating
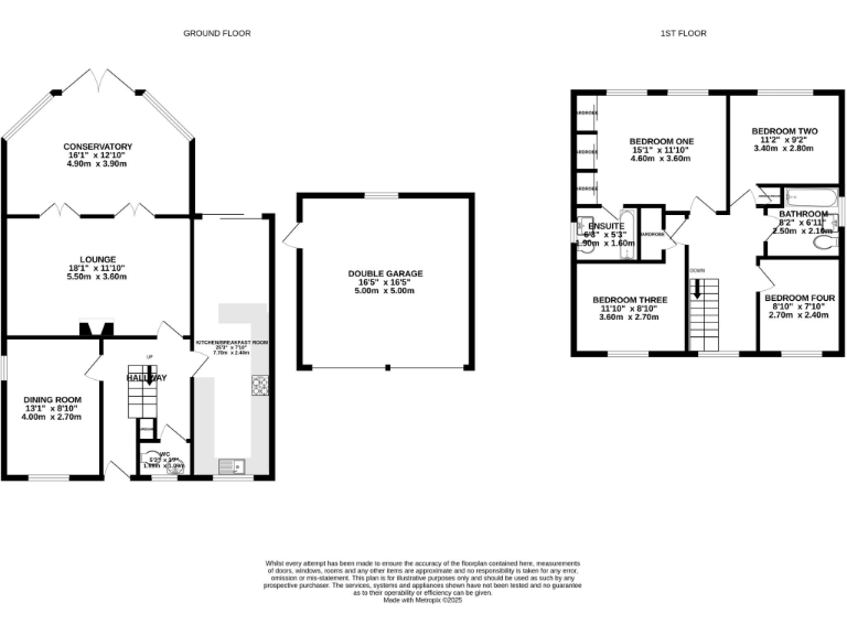
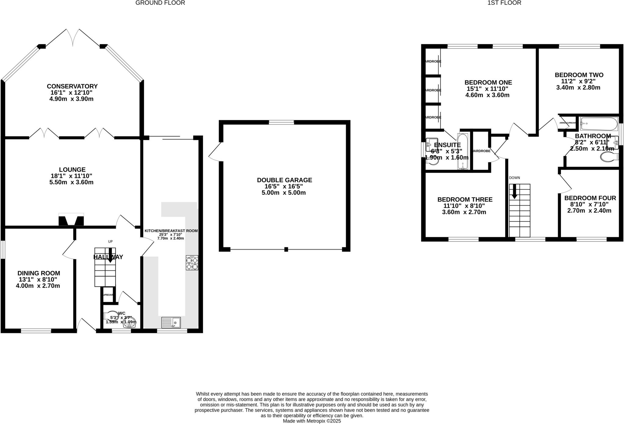
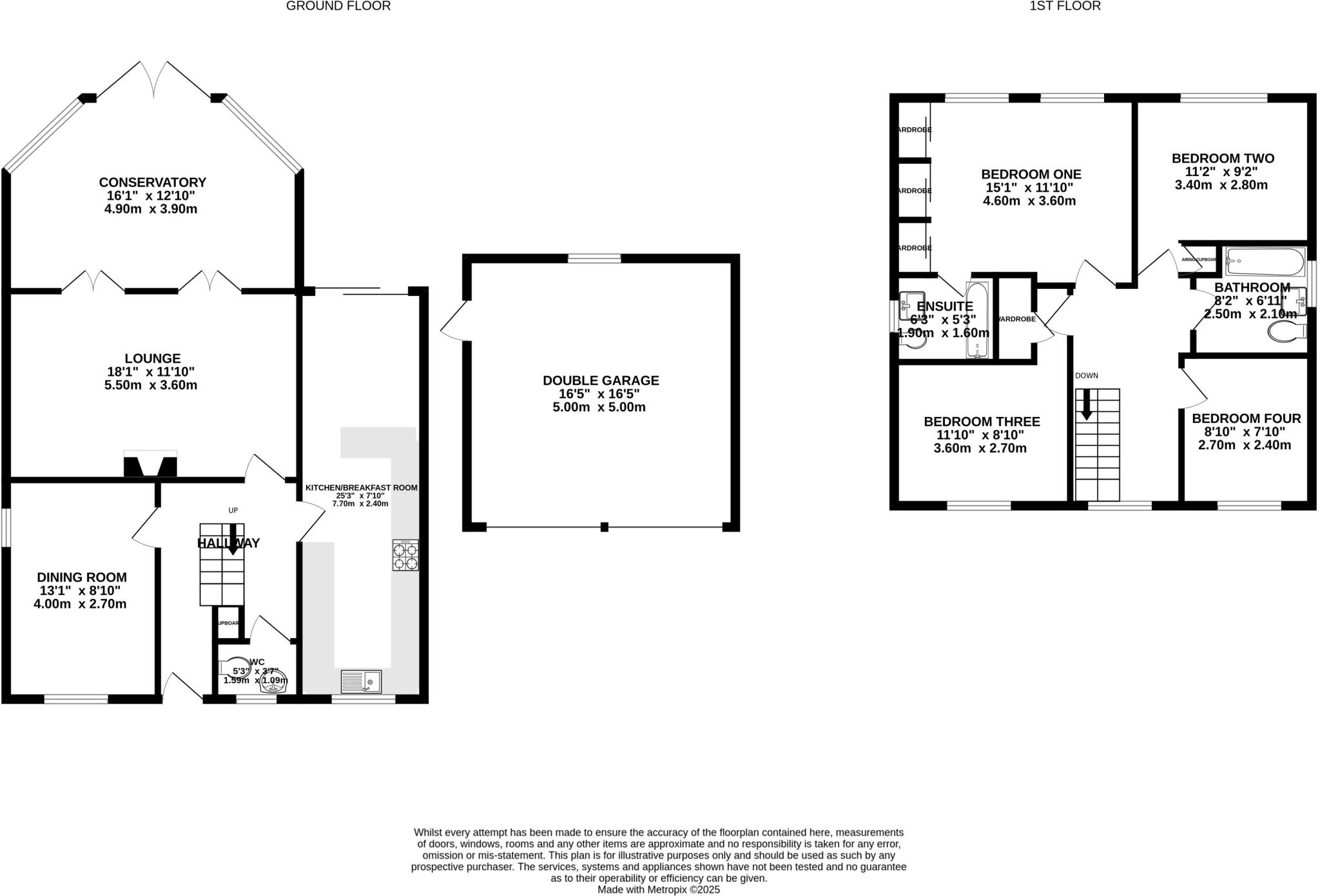
- Spacious lounge opening into large conservatory
- Kitchen/breakfast room overlooking private garden and patio
- Master bedroom with en-suite; three doubles and a large single
- Double garage, driveway parking and EV charging point
- Large plot with pond and greenhouse; side garden access
- Boarded loft with ladder; good broadband and mobile signal
- Council Tax band D; average overall house size for four beds
Set in a quiet Lympne cul-de-sac, this four-bedroom detached house combines modern eco-technology with generous family living. A 10 kW solar array, ground source heat pump and EV charger deliver low running costs and a high B EPC rating, making the house economical and low carbon.
The ground floor offers a spacious lounge that flows into an extensive conservatory, a separate reception room and a long kitchen/breakfast space overlooking the private garden. Outside there is a large plot with patio, pond and greenhouse, plus a double garage and driveway with solar-roof panels.
Upstairs are three double bedrooms, a large single ideal for an office or nursery, and a master en-suite. Practical extras include a boarded loft with ladder and good broadband and mobile signal. Council Tax band D applies and the home sits in a sought-after village location close to primary schools and transport links.
This is a comfortable, eco-conscious family home in a peaceful rural-fringe setting. The property is well-equipped for modern living but buyers should note the house is an average overall size for four bedrooms; viewings will show how the layout meets your family’s needs.
2 bedroom detached house for sale in Main Road, Sellindge, Ashford, Kent, TN25 — £450,000 • 2 bed • 2 bath • 1261 ft²
4 bedroom semi-detached house for sale in Keddows Close, Hythe, CT21 — £425,000 • 4 bed • 2 bath • 1380 ft²
3 bedroom detached house for sale in Canterbury Road, Folkestone, Kent CT18 7EQ, CT18 — £650,000 • 3 bed • 2 bath • 1786 ft²
5 bedroom detached house for sale in Stone Street, Lympne , CT21 — £525,000 • 5 bed • 2 bath • 2306 ft²
4 bedroom detached house for sale in Coopers Lane, Sellindge, TN25 — £800,000 • 4 bed • 3 bath • 2185 ft²
4 bedroom detached house for sale in Downs Road, East Studdal, CT15 — £600,000 • 4 bed • 3 bath • 1402 ft²






















































































































































