Spacious 4-bed eco detached with green roof, large garden and gated parking in Sellindge..
Built 2023 with living green roof and zinc roof
Air-source heat pump, underfloor heating, MVHR system
Triple-aspect bay lounge with solar glass windows and field views
Double garage, gated parking for up to three cars
Large plot with mature trees, raised beds and rainwater harvesting
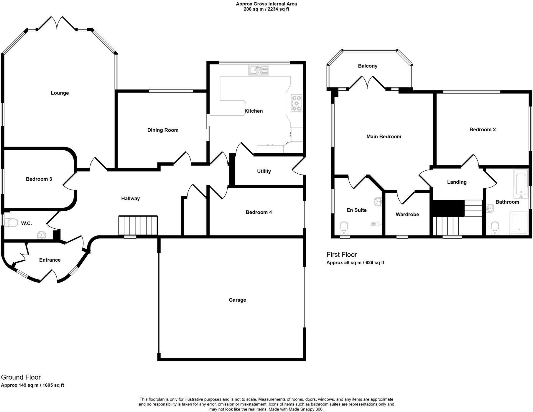
Two ground-floor bedrooms; cloakroom could accept a shower
EPC C despite strong eco technologies
Very slow broadband; council tax rated expensive
Set back on a quiet country lane in Sellindge, this four-bedroom detached eco home offers generous, light-filled living across a large plot. Built in 2023, the property combines contemporary design with environmental technology — living green roof, zinc roof, solar glass windows, rainwater harvesting and an air-source heat pump with underfloor heating. The triple-aspect bay lounge looks out across mature gardens and neighbouring fields, and a private master balcony captures early morning views.
Accommodation is arranged over multiple levels with a show-stopping lounge, an impressive kitchen with island and separate utility, two ground-floor bedrooms and a useful cloakroom/WC that could accept a shower for multi-generational living. Upstairs sits a four-piece family bathroom and the principal suite with walk-in wardrobe, en suite shower and balcony. Practical features include a double garage, gated parking for several cars and extensive planted areas including raised beds.
This home will suit buyers seeking a roomy, eco-conscious family dwelling in a rural setting with easy road access — about 12 minutes to Ashford and Hythe. Notable practical points: broadband speeds in the area are very slow, council tax is described as expensive, and the EPC is C despite high-performance elements. The sale is freehold and chain free, offering a straightforward move for the next owner.
2 bedroom detached house for sale in Main Road, Sellindge, Ashford, Kent, TN25 — £450,000 • 2 bed • 2 bath • 1261 ft²
4 bedroom detached house for sale in Downs Road, East Studdal, CT15 — £600,000 • 4 bed • 3 bath • 1402 ft²
3 bedroom detached house for sale in Canterbury Road, Folkestone, Kent CT18 7EQ, CT18 — £650,000 • 3 bed • 2 bath • 1786 ft²
4 bedroom detached house for sale in Firs Lane, Hollingbourne, Maidstone, ME17 — £775,000 • 4 bed • 2 bath • 1255 ft²
4 bedroom detached house for sale in Pilgrims Way, Charing, Kent, TN27 — £1,300,000 • 4 bed • 3 bath • 1969 ft²
4 bedroom detached bungalow for sale in Swan Lane, Sellindge, TN25 — £595,000 • 4 bed • 3 bath • 1852 ft²










































































































































