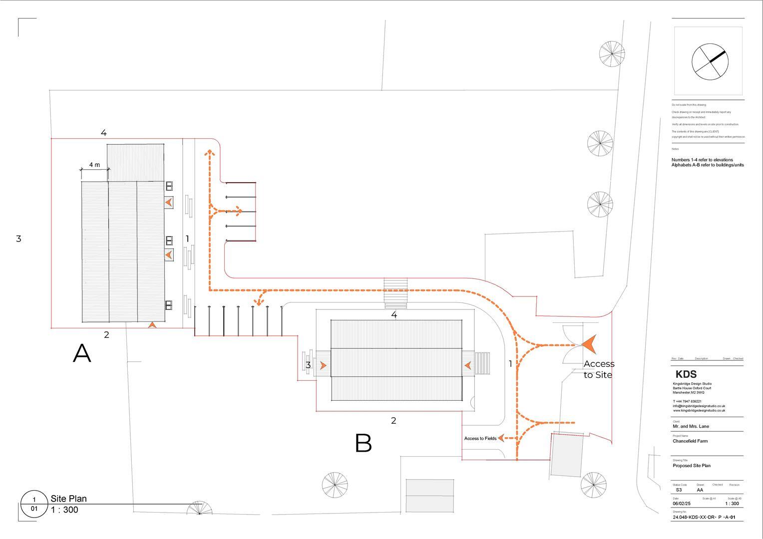
Class Q consent for five homes on a large rural steading near Pickhill.
- Class Q consent for conversion to five residential dwellings
- About 0.82 acres (0.33 ha) of site and hardstanding
- Total building area around 6,103 sq ft across farm buildings
- Easily accessible to Thirsk, Ripon, Bedale and A1(M) J50
- Buildings utilitarian; significant refurbishment and remediation required
- Large circular slurry/water tank and silos present (removal may be needed)
- Services unconfirmed; broadband very slow, water available
- Additional land available by separate negotiation
A substantial farm steading near Pickhill offered with Class Q consent to convert existing agricultural buildings into five residential dwellings. The site extends to about 0.82 acres (0.33 ha) and includes extensive hardstanding, multiple steel and timber barns, silos and a large circular slurry/water tank. Its location provides easy road access to Thirsk, Ripon, Bedale and the A1(M) J50. Total internal floor area shown as approximately 6,103 sq ft across the buildings.
This opportunity suits developers or investors seeking a countryside conversion project. The holding sits in established farming countryside with very low local crime and good primary schools nearby, offering appeal for future occupants wanting rural living within reasonable commuting distance. Additional land is available by separate negotiation, offering scope for plot expansion or subdivision subject to planning.
Buyers should allow for material conversion and remediation costs. The buildings are utilitarian and will require refurbishment, potential structural works and removal/management of the slurry tank and silos. Services and access constraints require technical due diligence: water is available, but broadband is very slow and utility connections, contamination surveys, rights of way and further planning advice have not been confirmed.
This freehold sale is presented as a whole. For the right purchaser it provides planning-enabled development potential in a quiet rural setting; for cautious buyers, the site also carries typical farmstead maintenance and environmental considerations that will affect build cost and programme.
Plot for sale in North Moor Road, Easingwold, YO61 — £550,000 • 1 bed • 1 bath
7 bedroom barn conversion for sale in Hunton, Hunton, Bedale, North Yorkshire, DL8 1PY, DL8 — £400,000 • 7 bed • 6 bath • 4908 ft²
Plot for sale in Catterick Lane, East Appleton, Richmond, North Yorkshire, DL10 — £400,000 • 1 bed • 1 bath • 2012 ft²
House for sale in Residential Development Opportunity, Low Farm Barns, Thorpe Underwood, North Yorkshire, YO26 — £950,000 • 1 bed • 1 bath • 2000 ft²
Plot for sale in Brakehill Farm, Rainton, Thirsk, YO7 — £1,500,000 • 1 bed • 1 bath • 18000 ft²
8 bedroom detached house for sale in Pickhill, Thirsk, YO7 4JG, YO7 — £1,250,000 • 8 bed • 4 bath • 2544 ft²






























