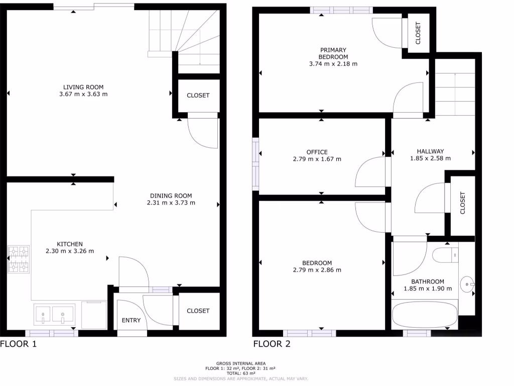
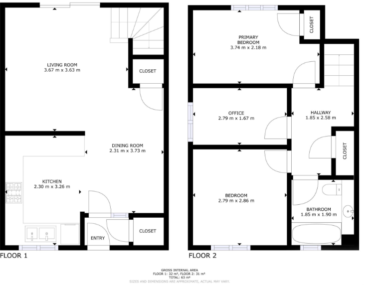
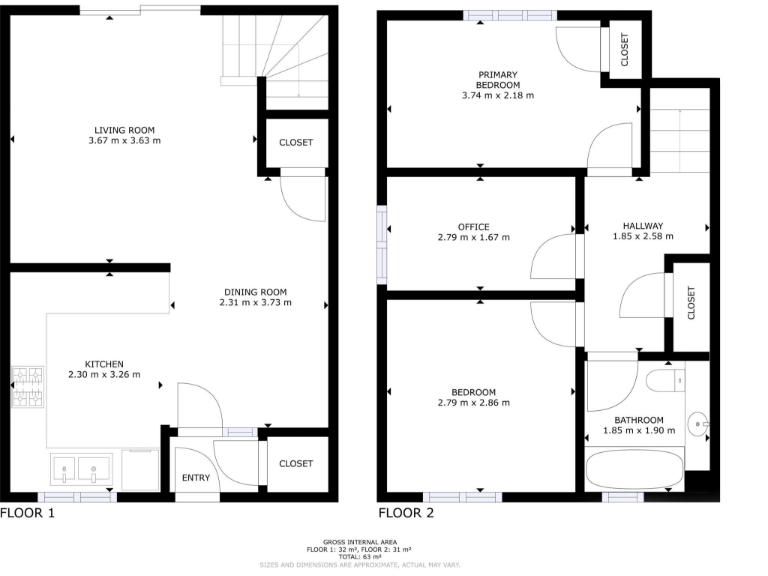
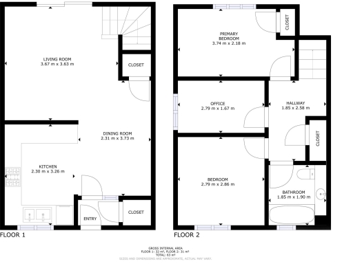
Compact family home with driveway and enclosed garden near Wilmslow centre.
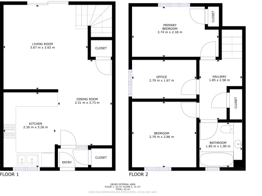
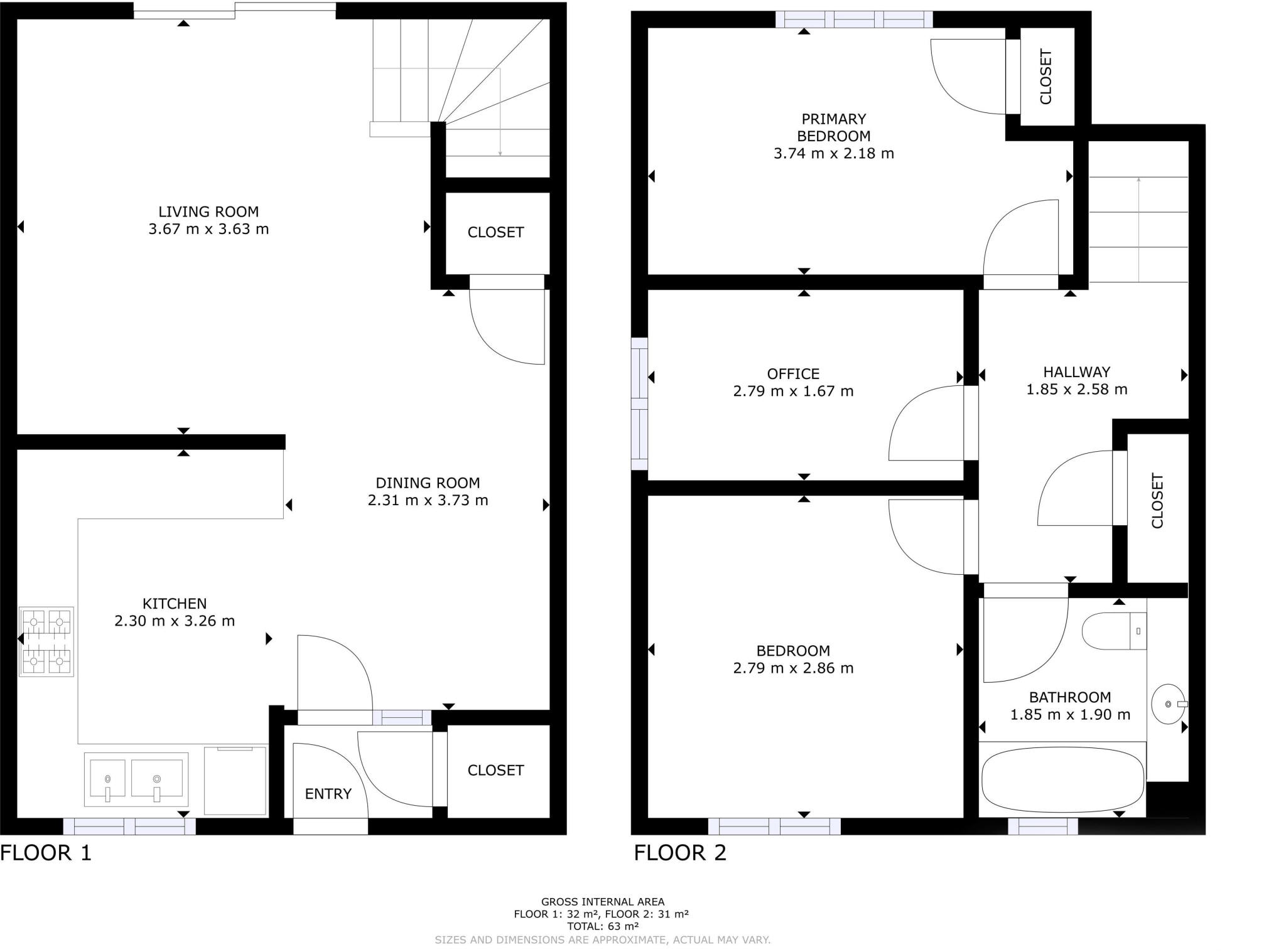
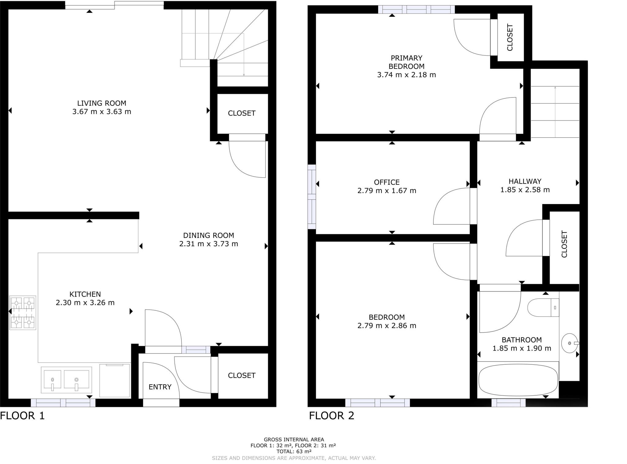
Three bedrooms with single family bathroom
This neatly presented three-bedroom semi-detached house offers a compact, practical family layout in a sought-after Wilmslow location. The ground floor’s open-plan kitchen / lounge / dining area opens onto an enclosed rear garden with recent decking — a light, low-maintenance outside space and useful entertaining area. Off-street parking for two cars and a driveway add everyday convenience.
Internally the property is well kept: modern fitted kitchen, a living/dining room with patio doors, three bedrooms and a single family bathroom. A circa four-year-old boiler and a part-boarded loft with light are helpful practical features. At approximately 678 sq ft the home is small and best suited to buyers wanting a modest footprint rather than generous rooms.
Positioned about 0.6 miles from Wilmslow centre, the house sits close to shops, markets and transport links into Manchester. It’s in the catchment of a well-regarded local primary (Lacey Green Primary Academy, rated Good) and near a range of secondary and independent schools, making it a sensible choice for families prioritising schooling and accessibility.
Summary: a well-presented, freehold three-bedroom starter or downsizer in a convenient town setting. Buyers should note the property’s compact size and single bathroom; there is scope to update or reconfigure interiors if more space is required.
3 bedroom terraced house for sale in Twinnies Road, Wilmslow, SK9 — £299,000 • 3 bed • 1 bath • 998 ft²
3 bedroom end of terrace house for sale in Barlow Road, Wilmslow, SK9 — £325,000 • 3 bed • 1 bath • 870 ft²
3 bedroom semi-detached house for sale in Wilmslow Road, Heald green, SK8 — £445,000 • 3 bed • 2 bath • 1547 ft²
3 bedroom detached house for sale in Primrose Way, Wilsmlow, SK9 — £499,950 • 3 bed • 2 bath • 1224 ft²
3 bedroom town house for sale in Rydal Mews, Manchester Road, Wilmslow, SK9 — £320,000 • 3 bed • 1 bath • 1210 ft²
3 bedroom terraced house for sale in Hampson Crescent, Handforth, SK9 — £315,000 • 3 bed • 1 bath • 786 ft²










































































































